Your email has been sent.
Station Rd 1,934 sq ft of Industrial Space Available in Hungerford RG17 0DY



Highlights
- Electric Roller Shutter.
- 2 Dedicated car parking spaces.
- 3m eaves height.
- Approximately 3 miles from M4 Junction 14.
- Estimated Rates Payable: £9980.
- Hungerford mainline railway station with direct services to London Paddington (average 59 minutes).
Features
All Available Space(1)
Display Rent as
- Space
- Size
- Term
- Rate
- Space Use
- Fit-Out
- Available
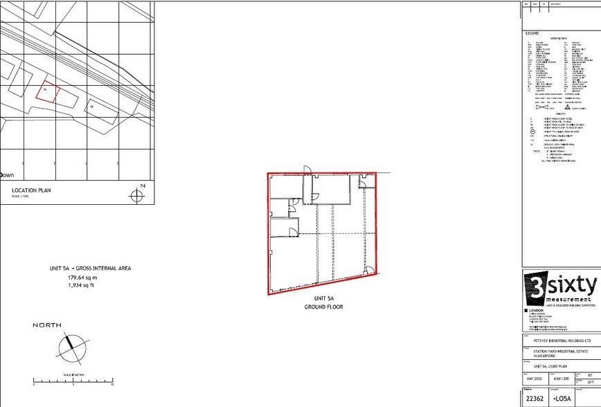
The subject property has an electric shutter door (approx. 4.5m wide and 2.99m high), a kitchenette unit, and a W.C within. The property is to be refurbished back to shell condition. There is associated parking with the subject property. Location The unit is situated within Station Yard Business Park on Station Road, Hungerford. From the A4 proceed into Hungerford High Street. At the second mini roundabout turn left then left at the top of the hill. Follow the road down to the level crossing then bear right and follow the road where you will see Station Yard in front of you. Terms The unit is available by way of a new Full Repairing and Insuring lease for a term to be agreed with the Landlord, to be outside the security of tenure provisions of the Landlord & Tenant Act 1954 and subject to vacant possession being gained. In general the property includes UPVC Double glazed windows throughout and 8 official car spaces (1:290 sq. ft.) to the front and side of the premises. The property benefits from 100% small business rates relief. Interested parties must verify with The Royal Borough of Windsor & Maidenhead. Business Rates Payable: £9,980 per annum.
- Use Class: B2
| Space | Size | Term | Rate | Space Use | Fit-Out | Available |
| Ground - 5A | 1,934 sq ft | Negotiable | £12.50 /sq ft pa £1.04 /sq ft pcm £24,175 pa £2,015 pcm | Industrial | - | 30 Days |
Ground - 5A
| Size |
| 1,934 sq ft |
| Term |
| Negotiable |
| Rate |
| £12.50 /sq ft pa £1.04 /sq ft pcm £24,175 pa £2,015 pcm |
| Space Use |
| Industrial |
| Fit-Out |
| - |
| Available |
| 30 Days |
Ground - 5A
| Size | 1,934 sq ft |
| Term | Negotiable |
| Rate | £12.50 /sq ft pa |
| Space Use | Industrial |
| Fit-Out | - |
| Available | 30 Days |
The subject property has an electric shutter door (approx. 4.5m wide and 2.99m high), a kitchenette unit, and a W.C within. The property is to be refurbished back to shell condition. There is associated parking with the subject property. Location The unit is situated within Station Yard Business Park on Station Road, Hungerford. From the A4 proceed into Hungerford High Street. At the second mini roundabout turn left then left at the top of the hill. Follow the road down to the level crossing then bear right and follow the road where you will see Station Yard in front of you. Terms The unit is available by way of a new Full Repairing and Insuring lease for a term to be agreed with the Landlord, to be outside the security of tenure provisions of the Landlord & Tenant Act 1954 and subject to vacant possession being gained. In general the property includes UPVC Double glazed windows throughout and 8 official car spaces (1:290 sq. ft.) to the front and side of the premises. The property benefits from 100% small business rates relief. Interested parties must verify with The Royal Borough of Windsor & Maidenhead. Business Rates Payable: £9,980 per annum.
- Use Class: B2
Property Overview
The unit is situated within Station Yard Business Park on Station Road, Hungerford. From the A4 proceed into Hungerford High Street. At the second mini roundabout turn left then left at the top of the hill. Follow the road down to the level crossing then bear right and follow the road where you will see Station Yard in front of you.
Property Facts
Presented by
Station Rd
Hmm, there seems to have been an error sending your message. Please try again.
Thanks! Your message was sent.
