Your email has been sent.
Some information has been automatically translated.
Highlights
- Immeuble HQE et Breeam
- Proche Part-Dieu et métro
- Rooftop et services premium
All Available Spaces(3)
Display Rent as
- Space
- Size
- Term
-
Rate
- Space Use
- Fit-Out
- Available
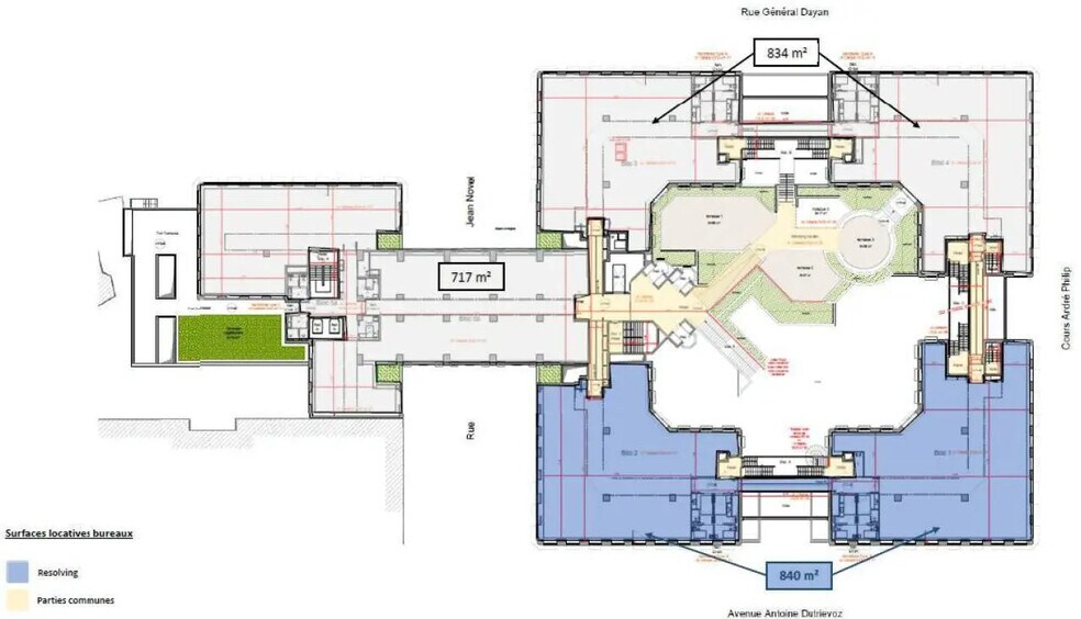
Cet espace situé au premier étage de l’immeuble PARHELION offre un aménagement qualitatif prêt à l’emploi, avec des bureaux cloisonnés et câblés. Les finitions sont soignées, incluant moquette, faux plafond et éclairage LED encastré. Les utilisateurs bénéficient d’un confort optimal grâce à la climatisation, aux sanitaires en parties communes et aux vestiaires avec douches. Un local à vélos est également disponible pour faciliter les déplacements urbains.
- Fully Fit-Out as Standard Office
- Partitioned Offices
- Space is in Excellent Condition
- Central Air Conditioning
- Wi-Fi Connectivity
- Security System
- Suspended Ceilings
- Bicycle Storage
- Common Parts WC Facilities
- Bureaux cloisonnés prêts à l’emploi
- Accès direct ascenseur
- High-density office layout
- Finished Ceilings: 6 ft 7 in
- Plug & Play
- Reception Area
- Lift Access
- Raised Floor
- Natural Light
- Shower Facilities
- Wheelchair Accessible
- Parking privatif disponible
Cet espace situé en entresol dans l’immeuble PARHELION bénéficie d’un aménagement qualitatif prêt à l’emploi, avec des bureaux cloisonnés et câblés. Les finitions sont soignées, incluant moquette, faux plafond et éclairage LED encastré. L’espace est conçu pour offrir confort et fonctionnalité, avec accès direct à l’ascenseur, climatisation et sanitaires en parties communes. Les utilisateurs disposent également de vestiaires avec douches et d’un local à vélos, idéal pour les déplacements urbains.
- Fully Fit-Out as Standard Office
- Partitioned Offices
- Space is in Excellent Condition
- Wi-Fi Connectivity
- Security System
- Suspended Ceilings
- Bicycle Storage
- Common Parts WC Facilities
- Bureaux cloisonnés prêts à l’emploi
- Accès direct ascenseur
- High-density office layout
- Finished Ceilings: 6 ft 7 in
- Reception Area
- Lift Access
- Raised Floor
- Natural Light
- Shower Facilities
- Wheelchair Accessible
- Parking privatif disponible
Cet espace situé au quatrième étage de l’immeuble PARHELION bénéficie d’un aménagement qualitatif prêt à l’emploi, avec des bureaux cloisonnés et câblés. Les finitions sont élégantes, incluant moquette, faux plafond et éclairage LED encastré. Les occupants disposent de sanitaires en parties communes, de vestiaires avec douches et d’un local à vélos. L’espace est conçu pour offrir confort et fonctionnalité dans un environnement premium.
- Fully Fit-Out as Standard Office
- Partitioned Offices
- Space is in Excellent Condition
- Central Air Conditioning
- Wi-Fi Connectivity
- Security System
- Suspended Ceilings
- Bicycle Storage
- Common Parts WC Facilities
- Bureaux cloisonnés prêts à l’emploi
- Accès direct ascenseur
- High-density office layout
- Finished Ceilings: 6 ft 7 in
- Plug & Play
- Reception Area
- Lift Access
- Raised Floor
- Natural Light
- Shower Facilities
- Wheelchair Accessible
- Parking privatif disponible
| Space | Size | Term | Rate | Space Use | Fit-Out | Available |
| 1st Floor, Ste R+1 - Parhélion | 9,042 sq ft | 3/6/9 | £16.42 /sq ft pa HT-HC £1.37 /sq ft pcm HT-HC £148,446 pa HT-HC £12,371 pcm HT-HC | Office | Full Fit-Out | Now |
| Mezzanine | 2,799 sq ft | 3/6/9 | £16.42 /sq ft pa HT-HC £1.37 /sq ft pcm HT-HC £45,948 pa HT-HC £3,829 pcm HT-HC | Office | Full Fit-Out | Now |
| 4th Floor, Ste R+4 - Parhélion | 4,876 sq ft | 3/6/9 | £16.42 /sq ft pa HT-HC £1.37 /sq ft pcm HT-HC £80,055 pa HT-HC £6,671 pcm HT-HC | Office | Full Fit-Out | Now |
1st Floor, Ste R+1 - Parhélion
| Size |
| 9,042 sq ft |
| Term |
| 3/6/9 |
|
Rate
|
| £16.42 /sq ft pa HT-HC £1.37 /sq ft pcm HT-HC £148,446 pa HT-HC £12,371 pcm HT-HC |
| Space Use |
| Office |
| Fit-Out |
| Full Fit-Out |
| Available |
| Now |
Mezzanine
| Size |
| 2,799 sq ft |
| Term |
| 3/6/9 |
|
Rate
|
| £16.42 /sq ft pa HT-HC £1.37 /sq ft pcm HT-HC £45,948 pa HT-HC £3,829 pcm HT-HC |
| Space Use |
| Office |
| Fit-Out |
| Full Fit-Out |
| Available |
| Now |
4th Floor, Ste R+4 - Parhélion
| Size |
| 4,876 sq ft |
| Term |
| 3/6/9 |
|
Rate
|
| £16.42 /sq ft pa HT-HC £1.37 /sq ft pcm HT-HC £80,055 pa HT-HC £6,671 pcm HT-HC |
| Space Use |
| Office |
| Fit-Out |
| Full Fit-Out |
| Available |
| Now |
1st Floor, Ste R+1 - Parhélion
| Size | 9,042 sq ft |
| Term | 3/6/9 |
|
Rate
|
£16.42 /sq ft pa HT-HC |
| Space Use | Office |
| Fit-Out | Full Fit-Out |
| Available | Now |
Cet espace situé au premier étage de l’immeuble PARHELION offre un aménagement qualitatif prêt à l’emploi, avec des bureaux cloisonnés et câblés. Les finitions sont soignées, incluant moquette, faux plafond et éclairage LED encastré. Les utilisateurs bénéficient d’un confort optimal grâce à la climatisation, aux sanitaires en parties communes et aux vestiaires avec douches. Un local à vélos est également disponible pour faciliter les déplacements urbains.
- Fully Fit-Out as Standard Office
- High-density office layout
- Partitioned Offices
- Finished Ceilings: 6 ft 7 in
- Space is in Excellent Condition
- Plug & Play
- Central Air Conditioning
- Reception Area
- Wi-Fi Connectivity
- Lift Access
- Security System
- Raised Floor
- Suspended Ceilings
- Natural Light
- Bicycle Storage
- Shower Facilities
- Common Parts WC Facilities
- Wheelchair Accessible
- Bureaux cloisonnés prêts à l’emploi
- Parking privatif disponible
- Accès direct ascenseur
Mezzanine
| Size | 2,799 sq ft |
| Term | 3/6/9 |
|
Rate
|
£16.42 /sq ft pa HT-HC |
| Space Use | Office |
| Fit-Out | Full Fit-Out |
| Available | Now |
Cet espace situé en entresol dans l’immeuble PARHELION bénéficie d’un aménagement qualitatif prêt à l’emploi, avec des bureaux cloisonnés et câblés. Les finitions sont soignées, incluant moquette, faux plafond et éclairage LED encastré. L’espace est conçu pour offrir confort et fonctionnalité, avec accès direct à l’ascenseur, climatisation et sanitaires en parties communes. Les utilisateurs disposent également de vestiaires avec douches et d’un local à vélos, idéal pour les déplacements urbains.
- Fully Fit-Out as Standard Office
- High-density office layout
- Partitioned Offices
- Finished Ceilings: 6 ft 7 in
- Space is in Excellent Condition
- Reception Area
- Wi-Fi Connectivity
- Lift Access
- Security System
- Raised Floor
- Suspended Ceilings
- Natural Light
- Bicycle Storage
- Shower Facilities
- Common Parts WC Facilities
- Wheelchair Accessible
- Bureaux cloisonnés prêts à l’emploi
- Parking privatif disponible
- Accès direct ascenseur
4th Floor, Ste R+4 - Parhélion
| Size | 4,876 sq ft |
| Term | 3/6/9 |
|
Rate
|
£16.42 /sq ft pa HT-HC |
| Space Use | Office |
| Fit-Out | Full Fit-Out |
| Available | Now |
Cet espace situé au quatrième étage de l’immeuble PARHELION bénéficie d’un aménagement qualitatif prêt à l’emploi, avec des bureaux cloisonnés et câblés. Les finitions sont élégantes, incluant moquette, faux plafond et éclairage LED encastré. Les occupants disposent de sanitaires en parties communes, de vestiaires avec douches et d’un local à vélos. L’espace est conçu pour offrir confort et fonctionnalité dans un environnement premium.
- Fully Fit-Out as Standard Office
- High-density office layout
- Partitioned Offices
- Finished Ceilings: 6 ft 7 in
- Space is in Excellent Condition
- Plug & Play
- Central Air Conditioning
- Reception Area
- Wi-Fi Connectivity
- Lift Access
- Security System
- Raised Floor
- Suspended Ceilings
- Natural Light
- Bicycle Storage
- Shower Facilities
- Common Parts WC Facilities
- Wheelchair Accessible
- Bureaux cloisonnés prêts à l’emploi
- Parking privatif disponible
- Accès direct ascenseur
Property Overview
**PARHELION - VILLEURBANNE** Located near Part-Dieu, close to Parc de la Tête d’Or, and on the border of Lyon’s 6th arrondissement, office spaces are available in a next-generation, fully renovated building. Originally constructed in 1984 by the renowned architect Claude Parent, the building has been completely reimagined with high-end services and amenities. The property features a majestic atrium with coworking spaces, a 360m² rooftop, a dining kiosk, concierge services, a fitness center, an event space, bike storage, and shower facilities. Additionally, the building includes a business center and underground parking spaces. It holds HQE "Very Good" and BREEAM "Very Good" certifications, ensuring sustainability and energy efficiency. The location benefits from excellent multimodal transportation options (metro, tramway, and major roadways) and offers immediate access to restaurants, shops, and leisure activities. The office spaces are move-in ready, featuring high-quality, pre-partitioned layouts.
- Concierge
- Fitness Centre
- Reception
- Bicycle Storage
- Lift Access
- Natural Light
- Sky Terrace
- Air Conditioning
Property Facts
Presented by
"69100 Villeurbanne"
Hmm, there seems to have been an error sending your message. Please try again.
Thanks! Your message was sent.









