Your email has been sent.
Some information has been automatically translated.
Highlights
- Quartier Tonkin, pôle tertiaire dynamique
- Proximité Parc de la Tête d’Or et campus La Doua
- Accès rapide Part-Dieu via métro, tram et bus
All Available Spaces(6)
Display Rent as
- Space
- Size
- Term
-
Rate
- Space Use
- Fit-Out
- Available
Cet espace bénéficie d’une conception moderne et fonctionnelle, idéal pour accueillir des équipes dans un environnement lumineux et agréable. Les bureaux sont livrés aménagés, non cloisonnés, permettant une organisation flexible en open space ou en zones privatives. Les finitions soignées et les équipements techniques garantissent un confort optimal pour les collaborateurs. L’accès est facilité par des halls spacieux et une circulation fluide, avec une attention particulière portée à l’accessibilité et à la sécurité.
- Fully Fit-Out as Standard Office
- Fits 17 - 52 People
- Space is in Excellent Condition
- Fully Carpeted
- Suspended Ceilings
- Natural Light
- Shower Facilities
- Bureaux neufs
- Terrasses et jardin paysager en cœur d’îlot
- Open Floor Plan Layout
- Finished Ceilings: 6 ft 7 in
- Central Air Conditioning
- Security System
- Recessed Lighting
- Bicycle Storage
- Open-Plan
- Espaces ERP 5e catégorie type W
Cet espace neuf conçu pour accueillir des ERP de 5e catégorie type W et bénéficie d’une architecture contemporaine favorisant la luminosité et le confort. Les aménagements intérieurs sont livrés non cloisonnés, avec des finitions haut de gamme telles que moquette en dalle U3P3, faux plafond et luminaires encastrés gradables. Les utilisateurs disposent également de terrasses et d’un jardin paysager en cœur d’îlot, créant un cadre de travail inspirant et propice à la convivialité.
- Fully Fit-Out as Standard Office
- Fits 22 - 67 People
- Space is in Excellent Condition
- Fully Carpeted
- Suspended Ceilings
- Natural Light
- Shower Facilities
- Bureaux neufs
- Terrasses et jardin paysager en cœur d’îlot
- Open Floor Plan Layout
- Finished Ceilings: 6 ft 7 in
- Central Air Conditioning
- Security System
- Recessed Lighting
- Bicycle Storage
- Open-Plan
- Espaces ERP 5e catégorie type W
Cet espace neuf conçu pour accueillir des ERP de 5e catégorie type W et bénéficie d’une architecture contemporaine favorisant la luminosité et le confort. Les aménagements intérieurs sont livrés non cloisonnés, avec des finitions haut de gamme telles que moquette en dalle U3P3, faux plafond et luminaires encastrés gradables. Les utilisateurs disposent également de terrasses et d’un jardin paysager en cœur d’îlot, créant un cadre de travail inspirant et propice à la convivialité.
- Fully Fit-Out as Standard Office
- Fits 49 - 151 People
- Space is in Excellent Condition
- Fully Carpeted
- Suspended Ceilings
- Natural Light
- Shower Facilities
- Bureaux neufs
- Terrasses et jardin paysager en cœur d’îlot
- Open Floor Plan Layout
- Finished Ceilings: 6 ft 7 in
- Central Air Conditioning
- Security System
- Recessed Lighting
- Bicycle Storage
- Open-Plan
- Espaces ERP 5e catégorie type W
Cet espace neuf conçu pour accueillir des ERP de 5e catégorie type W et bénéficie d’une architecture contemporaine favorisant la luminosité et le confort. Les aménagements intérieurs sont livrés non cloisonnés, avec des finitions haut de gamme telles que moquette en dalle U3P3, faux plafond et luminaires encastrés gradables. Les utilisateurs disposent également de terrasses et d’un jardin paysager en cœur d’îlot, créant un cadre de travail inspirant et propice à la convivialité.
- Fully Fit-Out as Standard Office
- Fits 25 - 75 People
- Space is in Excellent Condition
- Fully Carpeted
- Suspended Ceilings
- Natural Light
- Shower Facilities
- Bureaux neufs
- Terrasses et jardin paysager en cœur d’îlot
- Open Floor Plan Layout
- Finished Ceilings: 6 ft 7 in
- Central Air Conditioning
- Security System
- Recessed Lighting
- Bicycle Storage
- Open-Plan
- Espaces ERP 5e catégorie type W
Cet espace neuf conçu pour accueillir des ERP de 5e catégorie type W et bénéficie d’une architecture contemporaine favorisant la luminosité et le confort. Les aménagements intérieurs sont livrés non cloisonnés, avec des finitions haut de gamme telles que moquette en dalle U3P3, faux plafond et luminaires encastrés gradables. Les utilisateurs disposent également de terrasses et d’un jardin paysager en cœur d’îlot, créant un cadre de travail inspirant et propice à la convivialité.
- Fully Fit-Out as Standard Office
- Fits 24 - 73 People
- Space is in Excellent Condition
- Fully Carpeted
- Suspended Ceilings
- Natural Light
- Shower Facilities
- Bureaux neufs
- Terrasses et jardin paysager en cœur d’îlot
- Open Floor Plan Layout
- Finished Ceilings: 6 ft 7 in
- Central Air Conditioning
- Security System
- Recessed Lighting
- Bicycle Storage
- Open-Plan
- Espaces ERP 5e catégorie type W
Cet espace neuf conçu pour accueillir des ERP de 5e catégorie type W et bénéficie d’une architecture contemporaine favorisant la luminosité et le confort. Les aménagements intérieurs sont livrés non cloisonnés, avec des finitions haut de gamme telles que moquette en dalle U3P3, faux plafond et luminaires encastrés gradables. Les utilisateurs disposent également de terrasses et d’un jardin paysager en cœur d’îlot, créant un cadre de travail inspirant et propice à la convivialité.
- Fully Fit-Out as Standard Office
- Fits 12 - 36 People
- Space is in Excellent Condition
- Fully Carpeted
- Suspended Ceilings
- Natural Light
- Shower Facilities
- Bureaux neufs
- Terrasses et jardin paysager en cœur d’îlot
- Open Floor Plan Layout
- Finished Ceilings: 6 ft 7 in
- Central Air Conditioning
- Security System
- Recessed Lighting
- Bicycle Storage
- Open-Plan
- Espaces ERP 5e catégorie type W
| Space | Size | Term | Rate | Space Use | Fit-Out | Available |
| Ground, Ste RDC B - BEFLEX | 6,598 sq ft | Negotiable | £14.82 /sq ft pa HT-HC £1.23 /sq ft pcm HT-HC £97,762 pa HT-HC £8,147 pcm HT-HC | Office | Full Fit-Out | Now |
| 1st Floor, Ste R+1 - Lot B - BEFLEX | 8,568 sq ft | Negotiable | £14.82 /sq ft pa HT-HC £1.23 /sq ft pcm HT-HC £126,947 pa HT-HC £10,579 pcm HT-HC | Office | Full Fit-Out | Now |
| 2nd Floor, Ste R+2 - ABC - BEFLEX | 19,472 sq ft | Negotiable | £14.82 /sq ft pa HT-HC £1.23 /sq ft pcm HT-HC £288,502 pa HT-HC £24,042 pcm HT-HC | Office | Full Fit-Out | Now |
| 3rd Floor, Ste Lot AB | 9,688 sq ft | Negotiable | £14.82 /sq ft pa HT-HC £1.23 /sq ft pcm HT-HC £143,533 pa HT-HC £11,961 pcm HT-HC | Office | Full Fit-Out | Now |
| 4th Floor, Ste AB | 9,365 sq ft | Negotiable | £14.82 /sq ft pa HT-HC £1.23 /sq ft pcm HT-HC £138,749 pa HT-HC £11,562 pcm HT-HC | Office | Full Fit-Out | Now |
| 5th Floor, Ste R+5 - Lot B - BEFLEX | 4,639 sq ft | Negotiable | £14.82 /sq ft pa HT-HC £1.23 /sq ft pcm HT-HC £68,736 pa HT-HC £5,728 pcm HT-HC | Office | Full Fit-Out | Now |
Ground, Ste RDC B - BEFLEX
| Size |
| 6,598 sq ft |
| Term |
| Negotiable |
|
Rate
|
| £14.82 /sq ft pa HT-HC £1.23 /sq ft pcm HT-HC £97,762 pa HT-HC £8,147 pcm HT-HC |
| Space Use |
| Office |
| Fit-Out |
| Full Fit-Out |
| Available |
| Now |
1st Floor, Ste R+1 - Lot B - BEFLEX
| Size |
| 8,568 sq ft |
| Term |
| Negotiable |
|
Rate
|
| £14.82 /sq ft pa HT-HC £1.23 /sq ft pcm HT-HC £126,947 pa HT-HC £10,579 pcm HT-HC |
| Space Use |
| Office |
| Fit-Out |
| Full Fit-Out |
| Available |
| Now |
2nd Floor, Ste R+2 - ABC - BEFLEX
| Size |
| 19,472 sq ft |
| Term |
| Negotiable |
|
Rate
|
| £14.82 /sq ft pa HT-HC £1.23 /sq ft pcm HT-HC £288,502 pa HT-HC £24,042 pcm HT-HC |
| Space Use |
| Office |
| Fit-Out |
| Full Fit-Out |
| Available |
| Now |
3rd Floor, Ste Lot AB
| Size |
| 9,688 sq ft |
| Term |
| Negotiable |
|
Rate
|
| £14.82 /sq ft pa HT-HC £1.23 /sq ft pcm HT-HC £143,533 pa HT-HC £11,961 pcm HT-HC |
| Space Use |
| Office |
| Fit-Out |
| Full Fit-Out |
| Available |
| Now |
4th Floor, Ste AB
| Size |
| 9,365 sq ft |
| Term |
| Negotiable |
|
Rate
|
| £14.82 /sq ft pa HT-HC £1.23 /sq ft pcm HT-HC £138,749 pa HT-HC £11,562 pcm HT-HC |
| Space Use |
| Office |
| Fit-Out |
| Full Fit-Out |
| Available |
| Now |
5th Floor, Ste R+5 - Lot B - BEFLEX
| Size |
| 4,639 sq ft |
| Term |
| Negotiable |
|
Rate
|
| £14.82 /sq ft pa HT-HC £1.23 /sq ft pcm HT-HC £68,736 pa HT-HC £5,728 pcm HT-HC |
| Space Use |
| Office |
| Fit-Out |
| Full Fit-Out |
| Available |
| Now |
Ground, Ste RDC B - BEFLEX
| Size | 6,598 sq ft |
| Term | Negotiable |
|
Rate
|
£14.82 /sq ft pa HT-HC |
| Space Use | Office |
| Fit-Out | Full Fit-Out |
| Available | Now |
Cet espace bénéficie d’une conception moderne et fonctionnelle, idéal pour accueillir des équipes dans un environnement lumineux et agréable. Les bureaux sont livrés aménagés, non cloisonnés, permettant une organisation flexible en open space ou en zones privatives. Les finitions soignées et les équipements techniques garantissent un confort optimal pour les collaborateurs. L’accès est facilité par des halls spacieux et une circulation fluide, avec une attention particulière portée à l’accessibilité et à la sécurité.
- Fully Fit-Out as Standard Office
- Open Floor Plan Layout
- Fits 17 - 52 People
- Finished Ceilings: 6 ft 7 in
- Space is in Excellent Condition
- Central Air Conditioning
- Fully Carpeted
- Security System
- Suspended Ceilings
- Recessed Lighting
- Natural Light
- Bicycle Storage
- Shower Facilities
- Open-Plan
- Bureaux neufs
- Espaces ERP 5e catégorie type W
- Terrasses et jardin paysager en cœur d’îlot
1st Floor, Ste R+1 - Lot B - BEFLEX
| Size | 8,568 sq ft |
| Term | Negotiable |
|
Rate
|
£14.82 /sq ft pa HT-HC |
| Space Use | Office |
| Fit-Out | Full Fit-Out |
| Available | Now |
Cet espace neuf conçu pour accueillir des ERP de 5e catégorie type W et bénéficie d’une architecture contemporaine favorisant la luminosité et le confort. Les aménagements intérieurs sont livrés non cloisonnés, avec des finitions haut de gamme telles que moquette en dalle U3P3, faux plafond et luminaires encastrés gradables. Les utilisateurs disposent également de terrasses et d’un jardin paysager en cœur d’îlot, créant un cadre de travail inspirant et propice à la convivialité.
- Fully Fit-Out as Standard Office
- Open Floor Plan Layout
- Fits 22 - 67 People
- Finished Ceilings: 6 ft 7 in
- Space is in Excellent Condition
- Central Air Conditioning
- Fully Carpeted
- Security System
- Suspended Ceilings
- Recessed Lighting
- Natural Light
- Bicycle Storage
- Shower Facilities
- Open-Plan
- Bureaux neufs
- Espaces ERP 5e catégorie type W
- Terrasses et jardin paysager en cœur d’îlot
2nd Floor, Ste R+2 - ABC - BEFLEX
| Size | 19,472 sq ft |
| Term | Negotiable |
|
Rate
|
£14.82 /sq ft pa HT-HC |
| Space Use | Office |
| Fit-Out | Full Fit-Out |
| Available | Now |
Cet espace neuf conçu pour accueillir des ERP de 5e catégorie type W et bénéficie d’une architecture contemporaine favorisant la luminosité et le confort. Les aménagements intérieurs sont livrés non cloisonnés, avec des finitions haut de gamme telles que moquette en dalle U3P3, faux plafond et luminaires encastrés gradables. Les utilisateurs disposent également de terrasses et d’un jardin paysager en cœur d’îlot, créant un cadre de travail inspirant et propice à la convivialité.
- Fully Fit-Out as Standard Office
- Open Floor Plan Layout
- Fits 49 - 151 People
- Finished Ceilings: 6 ft 7 in
- Space is in Excellent Condition
- Central Air Conditioning
- Fully Carpeted
- Security System
- Suspended Ceilings
- Recessed Lighting
- Natural Light
- Bicycle Storage
- Shower Facilities
- Open-Plan
- Bureaux neufs
- Espaces ERP 5e catégorie type W
- Terrasses et jardin paysager en cœur d’îlot
3rd Floor, Ste Lot AB
| Size | 9,688 sq ft |
| Term | Negotiable |
|
Rate
|
£14.82 /sq ft pa HT-HC |
| Space Use | Office |
| Fit-Out | Full Fit-Out |
| Available | Now |
Cet espace neuf conçu pour accueillir des ERP de 5e catégorie type W et bénéficie d’une architecture contemporaine favorisant la luminosité et le confort. Les aménagements intérieurs sont livrés non cloisonnés, avec des finitions haut de gamme telles que moquette en dalle U3P3, faux plafond et luminaires encastrés gradables. Les utilisateurs disposent également de terrasses et d’un jardin paysager en cœur d’îlot, créant un cadre de travail inspirant et propice à la convivialité.
- Fully Fit-Out as Standard Office
- Open Floor Plan Layout
- Fits 25 - 75 People
- Finished Ceilings: 6 ft 7 in
- Space is in Excellent Condition
- Central Air Conditioning
- Fully Carpeted
- Security System
- Suspended Ceilings
- Recessed Lighting
- Natural Light
- Bicycle Storage
- Shower Facilities
- Open-Plan
- Bureaux neufs
- Espaces ERP 5e catégorie type W
- Terrasses et jardin paysager en cœur d’îlot
4th Floor, Ste AB
| Size | 9,365 sq ft |
| Term | Negotiable |
|
Rate
|
£14.82 /sq ft pa HT-HC |
| Space Use | Office |
| Fit-Out | Full Fit-Out |
| Available | Now |
Cet espace neuf conçu pour accueillir des ERP de 5e catégorie type W et bénéficie d’une architecture contemporaine favorisant la luminosité et le confort. Les aménagements intérieurs sont livrés non cloisonnés, avec des finitions haut de gamme telles que moquette en dalle U3P3, faux plafond et luminaires encastrés gradables. Les utilisateurs disposent également de terrasses et d’un jardin paysager en cœur d’îlot, créant un cadre de travail inspirant et propice à la convivialité.
- Fully Fit-Out as Standard Office
- Open Floor Plan Layout
- Fits 24 - 73 People
- Finished Ceilings: 6 ft 7 in
- Space is in Excellent Condition
- Central Air Conditioning
- Fully Carpeted
- Security System
- Suspended Ceilings
- Recessed Lighting
- Natural Light
- Bicycle Storage
- Shower Facilities
- Open-Plan
- Bureaux neufs
- Espaces ERP 5e catégorie type W
- Terrasses et jardin paysager en cœur d’îlot
5th Floor, Ste R+5 - Lot B - BEFLEX
| Size | 4,639 sq ft |
| Term | Negotiable |
|
Rate
|
£14.82 /sq ft pa HT-HC |
| Space Use | Office |
| Fit-Out | Full Fit-Out |
| Available | Now |
Cet espace neuf conçu pour accueillir des ERP de 5e catégorie type W et bénéficie d’une architecture contemporaine favorisant la luminosité et le confort. Les aménagements intérieurs sont livrés non cloisonnés, avec des finitions haut de gamme telles que moquette en dalle U3P3, faux plafond et luminaires encastrés gradables. Les utilisateurs disposent également de terrasses et d’un jardin paysager en cœur d’îlot, créant un cadre de travail inspirant et propice à la convivialité.
- Fully Fit-Out as Standard Office
- Open Floor Plan Layout
- Fits 12 - 36 People
- Finished Ceilings: 6 ft 7 in
- Space is in Excellent Condition
- Central Air Conditioning
- Fully Carpeted
- Security System
- Suspended Ceilings
- Recessed Lighting
- Natural Light
- Bicycle Storage
- Shower Facilities
- Open-Plan
- Bureaux neufs
- Espaces ERP 5e catégorie type W
- Terrasses et jardin paysager en cœur d’îlot
Property Overview
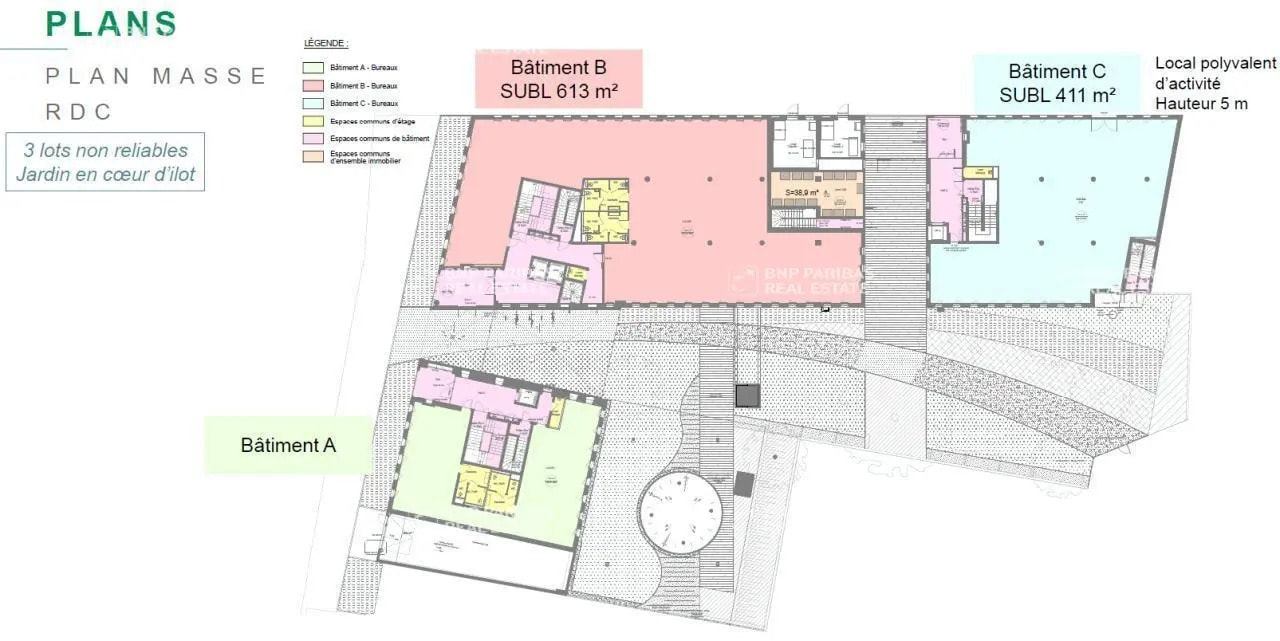
**Be-Flex - Villeurbanne Tonkin** We are offering for lease 7,156 sq. ft. of brand-new office space, spread across three connectable buildings, divisible starting from 359 sq. ft., nestled within a landscaped garden at the heart of the block, complemented by beautiful terraces. Featuring contemporary architecture and agile workspaces designed to accommodate 5th-category ERP type W. Excellent accessibility, just minutes from the tramway, in an attractive commercial environment. An inspiring work setting with ground-floor amenities, including a lounge area and cafeteria zone. Located near Parc de la Tête d’Or, the northern and eastern ring roads connecting to the entire highway network, this neighborhood was one of the first business districts established in the 1980s. It is easily accessible via the tramway and the C2 bus line, which offers direct connections to Part-Dieu. The Tonkin/La Doua district is bordered by Parc de la Tête d’Or, the Lyon Tennis Club, Parc de la Feyssine, and Lyon’s 6th arrondissement. The Doua Campus is the largest university site in the area, spanning 100 hectares. It hosts prestigious engineering schools such as INSA, POLYTECH LYON, and CPE. Around 2,000 researchers work on this site, which accommodates 30,000 people and represents 40% of Lyon’s scientific potential. As Villeurbanne’s premier business district, located at the gateway to the 6th arrondissement, Tonkin offers high-quality office buildings. It is also connected to the Cité Internationale via Parc de la Tête d’Or. The area provides easy access to destinations outside Lyon thanks to the northern and eastern ring roads. New projects are driving the urban renewal of the Tonkin district, including the redevelopment of the former Tonkin Clinic and the Espace Tête d’Or into next-generation office spaces. The Tonkin district is well-served by public transportation, including metro lines A and B via Charpennes station, just a few minutes’ walk away, and tramway lines T1 and T4. The C2 bus line, which operates largely on dedicated lanes, connects the area to Part-Dieu in just a few minutes. The sector is home to numerous consulting, engineering, and IT companies (such as ESKER, Ciril, In Extenso, and soon the Regional Headquarters of Cegid). It also hosts the Lyon Tech-La Doua university campus, the Double Mixte event space, and the Transbordeur concert venue.
- Bus Route
- Courtyard
- Reception
- Roof Terrace
- Bicycle Storage
- Common Parts WC Facilities
- Lift Access
- Secure Storage
- Suspended Ceilings
- Air Conditioning
- Balcony
- Fiber Optic Internet
Property Facts
Presented by
"69100 Villeurbanne"
Hmm, there seems to have been an error sending your message. Please try again.
Thanks! Your message was sent.


















