Your email has been sent.
Some information has been automatically translated.
Investment Highlights
- Quartier Tonkin, pôle tertiaire dynamique
- Proximité Parc de la Tête d’Or et campus La Doua
- Accès rapide Part-Dieu via métro, tram et bus
Executive Summary
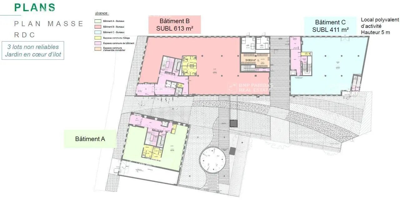
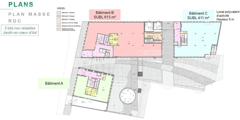
BEFLEX VILLEURBANNE We are offering 7,156 square meters of brand-new office space for sale, consisting of three connectable buildings, divisible starting from 359 square meters, set within a landscaped garden at the heart of the block and featuring beautiful terraces. The architecture is contemporary, with flexible workspaces designed to accommodate 5th-category ERP type W. The location is well-connected, just minutes from the tramway, and surrounded by an attractive commercial environment. It provides an inspiring work setting with ground-floor amenities, including a lounge area and cafeteria zone. Located near Parc de la Tête d’Or, the northern and eastern ring roads, which connect to the entire highway network, this area was one of the first business districts established in the 1980s. It is accessible via the tramway and the C2 bus line, offering direct connections to Part-Dieu. The Tonkin/La Doua neighborhood is bordered by Parc de la Tête d’Or, the Lyon Tennis Club, Parc de la Feyssine, and Lyon’s 6th arrondissement. The Doua Campus is the largest university site in the area, spanning 100 hectares. It hosts prestigious engineering schools such as INSA, POLYTECH LYON, and CPE. Around 2,000 researchers work on this site, which accommodates 30,000 people and represents 40% of Lyon’s scientific potential. As Villeurbanne’s premier business district, located at the gateway to the 6th arrondissement, Tonkin offers high-quality office buildings. It is also connected to the Cité Internationale via Parc de la Tête d’Or. The area provides easy access to Lyon’s outskirts through the northern and eastern ring roads. New projects are driving the urban renewal of the Tonkin neighborhood, including the redevelopment of the former Tonkin Clinic and the Espace Tête d’Or into next-generation office spaces. The Tonkin district is served by the metro (Lines A and B) with Charpennes station just a few minutes’ walk away, as well as the tramway (Lines T1 and T4). The C2 bus line, which operates largely on dedicated lanes, offers quick access to Part-Dieu. The area is home to consulting, engineering, and IT companies such as ESKER, Ciril, In Extenso, and soon the Regional Headquarters of Cegid. It also hosts the Lyon Tech-La Doua university campus, the Double Mixte event space, and the Transbordeur concert venue.
9 Units Available
Unit A
| Unit Size | 4,144 sq ft | Sale Type | Owner Occupier |
| Unit Use | Office |
| Unit Size | 4,144 sq ft |
| Unit Use | Office |
| Sale Type | Owner Occupier |
Floor Plan
Interior Photo
Interior Photo
Interior Photo
Interior Photo
Interior Photo
Interior Photo
Interior Photo
Interior Photo
Interior Photo
Interior Photo
Interior Photo
Interior Photo
Interior Photo
Interior Photo
Interior Photo
Interior Photo
Interior Photo
Unit B
| Unit Size | 8,568 sq ft | Sale Type | Owner Occupier |
| Unit Use | Office |
| Unit Size | 8,568 sq ft |
| Unit Use | Office |
| Sale Type | Owner Occupier |
Floor Plan
Interior Photo
Interior Photo
Interior Photo
Interior Photo
Interior Photo
Interior Photo
Interior Photo
Interior Photo
Interior Photo
Interior Photo
Interior Photo
Interior Photo
Interior Photo
Interior Photo
Interior Photo
Interior Photo
Interior Photo
Unit B
| Unit Size | 6,598 sq ft | Sale Type | Owner Occupier |
| Unit Use | Office |
| Unit Size | 6,598 sq ft |
| Unit Use | Office |
| Sale Type | Owner Occupier |
Floor Plan
Interior Photo
Interior Photo
Interior Photo
Interior Photo
Interior Photo
Interior Photo
Interior Photo
Interior Photo
Interior Photo
Interior Photo
Interior Photo
Interior Photo
Interior Photo
Interior Photo
Interior Photo
Interior Photo
Interior Photo
Unit C
| Unit Size | 4,897 sq ft | Sale Type | Owner Occupier |
| Unit Use | Office |
| Unit Size | 4,897 sq ft |
| Unit Use | Office |
| Sale Type | Owner Occupier |
Floor Plan
Interior Photo
Interior Photo
Interior Photo
Interior Photo
Interior Photo
Interior Photo
Interior Photo
Interior Photo
Interior Photo
Interior Photo
Interior Photo
Interior Photo
Interior Photo
Interior Photo
Interior Photo
Interior Photo
Interior Photo
Unit C
| Unit Size | 4,423 sq ft | Sale Type | Owner Occupier |
| Unit Use | Light Industrial |
| Unit Size | 4,423 sq ft |
| Unit Use | Light Industrial |
| Sale Type | Owner Occupier |
Floor Plan
Interior Photo
Interior Photo
Interior Photo
Interior Photo
Interior Photo
Interior Photo
Interior Photo
Interior Photo
Interior Photo
Interior Photo
Interior Photo
Interior Photo
Interior Photo
Interior Photo
Interior Photo
Interior Photo
Interior Photo
Unit ABC
| Unit Size | 19,471 sq ft | Sale Type | Owner Occupier |
| Unit Use | Office |
| Unit Size | 19,471 sq ft |
| Unit Use | Office |
| Sale Type | Owner Occupier |
Floor Plan
Floor Plan
Interior Photo
Interior Photo
Interior Photo
Interior Photo
Interior Photo
Interior Photo
Interior Photo
Interior Photo
Interior Photo
Interior Photo
Interior Photo
Interior Photo
Interior Photo
Interior Photo
Interior Photo
Interior Photo
Interior Photo
Unit AB
| Unit Size | 9,687 sq ft | Sale Type | Owner Occupier |
| Unit Use | Office |
| Unit Size | 9,687 sq ft |
| Unit Use | Office |
| Sale Type | Owner Occupier |
Floor Plan
Floor Plan
Interior Photo
Interior Photo
Interior Photo
Interior Photo
Interior Photo
Interior Photo
Interior Photo
Interior Photo
Interior Photo
Interior Photo
Interior Photo
Interior Photo
Interior Photo
Interior Photo
Interior Photo
Interior Photo
Interior Photo
Unit C
| Unit Size | 5,231 sq ft | Sale Type | Owner Occupier |
| Unit Use | Office |
| Unit Size | 5,231 sq ft |
| Unit Use | Office |
| Sale Type | Owner Occupier |
Floor Plan
Floor Plan
Interior Photo
Interior Photo
Interior Photo
Interior Photo
Interior Photo
Interior Photo
Interior Photo
Interior Photo
Interior Photo
Interior Photo
Interior Photo
Interior Photo
Interior Photo
Interior Photo
Interior Photo
Interior Photo
Interior Photo
Unit AB
| Unit Size | 9,364 sq ft | Sale Type | Owner Occupier |
| Unit Use | Office |
| Unit Size | 9,364 sq ft |
| Unit Use | Office |
| Sale Type | Owner Occupier |
Floor Plan
Interior Photo
Interior Photo
Interior Photo
Interior Photo
Interior Photo
Interior Photo
Interior Photo
Interior Photo
Interior Photo
Interior Photo
Interior Photo
Interior Photo
Interior Photo
Interior Photo
Interior Photo
Interior Photo
Interior Photo
Property Facts
| Total Property Size | > 50,000 sq ft | Floors | 6 |
| Property Type | Office | Year Built | 2020 - 2026 |
| Costar Property Class | B | Parking | Yes |
| Total Property Size | > 50,000 sq ft |
| Property Type | Office |
| Costar Property Class | B |
| Floors | 6 |
| Year Built | 2020 - 2026 |
| Parking | Yes |
Amenities
- Bus Route
- Courtyard
- Reception
- Roof Terrace
- Bicycle Storage
- Common Parts WC Facilities
- Lift Access
- Secure Storage
- Suspended Ceilings
- Air Conditioning
- Balcony
- Fiber Optic Internet
Presented by
"69100 Villeurbanne"
Hmm, there seems to have been an error sending your message. Please try again.
Thanks! Your message was sent.








