Your email has been sent.
10-12 10-14 Whitefriargate 3,062 - 11,406 sq ft of Retail Space Available in Hull HU1 2ER


Highlights
- UK City of Culture 2017 with ongoing regeneration
- Vibrant cultural scene: Freedom Festival, Hull Truck Theatre, Bonus Arena
- £25m city centre public realm investment
- M62 motorway, one of the main east-west routes in the north of England, connects Hull to Leeds and beyond
Space Availability (2)
Display Rent as
- Space
- Size
- Term
- Rate
- Type
| Space | Size | Term | Rate | Type | ||
| Ground | 8,344 sq ft | 5 Years | Upon Application Upon Application Upon Application Upon Application | Fully Repairing & Insuring | ||
| Ground, Ste 13-14 | 3,062 sq ft | 3 Years | Upon Application Upon Application Upon Application Upon Application | TBD |
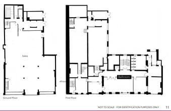
Ground
The ground floor provides a predominantly open-plan sales area benefiting from excellent frontage onto Whitefriargate. The first floor includes staff areas and storage, with potential to be reinstated into a large open-plan area or ballroom (subject to consents). Upper floors provide additional storage and ancillary accommodation, while the third floor and attic offer further flexibility for future adaptation. All areas are approximate and span a total of 9,637 sq ft across the building.
- Use Class: Class 1A
- Located in-line with other retail
- Prominent Grade II* listed building with historic
- Former Neptune Inn with original banqueting hall
- Large open-plan ground floor sales area
- Generous storage across upper levels
- Impressive architectural features with heritage de
Ground, Ste 13-14
The ground floor provides a predominantly open-plan sales area benefiting from excellent frontage onto Whitefriargate. The first floor includes staff areas and storage, with potential to be reinstated into a large open-plan area or ballroom (subject to consents). Upper floors provide additional storage and ancillary accommodation, while the third floor and attic offer further flexibility for future adaptation. All areas are approximate and span a total of 9,637 sq ft across the building.
- Use Class: Class 1A
- Located in-line with other retail
- Prominent Grade II* listed building with historic
- Former Neptune Inn with original banqueting hall
- Large open-plan ground floor sales area
- Generous storage across upper levels
- Impressive architectural features with heritage de
Service Types
The rent amount and service type that the tenant (lessee) will be responsible to pay to the landlord (lessor) throughout the lease term is negotiated prior to both parties signing a lease agreement. The service type will vary depending upon the services provided. Contact the listing agent for a full understanding of any associated costs or additional expenses for each service type.
1. Fully Repairing & Insuring: All obligations for repairing and insuring the property (or their share of the property) both internally and externally.
2. Internal Repairing Only: The tenant is responsible for internal repairs only. The landlord is responsible for structural and external repairs.
3. Internal Repairing & Insuring: The tenant is responsible for internal repairs and insurance for internal parts of the property only. The landlord is responsible for structural and external repairs.
4. Negotiable or TBD: This is used when the leasing contact does not provide the service type.
Property Facts
| Total Space Available | 11,406 sq ft | Net Internal Area (NIA) | 19,369 sq ft |
| Property Type | Retail | Year Built | 1797 |
| Property Subtype | Shopfront Retail / Office |
| Total Space Available | 11,406 sq ft |
| Property Type | Retail |
| Property Subtype | Shopfront Retail / Office |
| Net Internal Area (NIA) | 19,369 sq ft |
| Year Built | 1797 |
About the Property
10–12 Whitefriargate is a substantial Grade II* listed retail building positioned on one of Hull’s premier shopping streets. The property offers accommodation across five floors, with the main trading areas situated on the ground and first floor, supported by generous storage and ancillary space above. Formerly the Neptune Inn and later Hull’s Custom House, the building retains significant historic character, including an ornate two-storey ballroom. Its prominent frontage, central location, and proximity to key leisure and cultural amenities make it a compelling opportunity for a wide range of occupiers.
- Storage Space
Nearby Major Retailers
Presented by
10-12 | 10-14 Whitefriargate
Hmm, there seems to have been an error sending your message. Please try again.
Thanks! Your message was sent.






