Your email has been sent.
Plus Ultra Manchester 60 Upper Brook St 12,837 - 217,078 sq ft of 5-Star Office Space Available in Manchester M13 9QD



Highlights
- Plus Ultra Manchester sits in the heart of the Oxford Road Innovation District, Manchester’s Knowledge Quarter.
- The building is strategically positioned near the University of Manchester and the Henry Royce Institute.
- Home to one of the largest clinical academic campuses in Europe, attracting researchers, clinicians, students, and academics from around the world.
All Available Spaces(8)
Display Rent as
- Space
- Size
- Term
- Rate
- Space Use
- Condition
- Available
Plus Ultra Manchester provides a range of versatile lab and office spaces tailored to meet diverse requirements. Each floor can accommodate multiple tenants, allowing for flexible arrangements based on specific needs. The building features customisable floor plates designed to support a mix of laboratory and office environments, making it ideal for start-ups and mature companies alike. With an emphasis on adaptability, clients can scale their operations seamlessly, ensuring they have the right space to foster innovation and drive their research and development efforts forward
- Use Class: E
- Mostly Open Floor Plan Layout
- Space is in Excellent Condition
- Laboratory
- Common Parts WC Facilities
- CL2 Labs
- Partially Fit-Out as Research and Development Space
- Fits 88 - 280 People
- Can be combined with additional space(s) for up to 217,078 sq ft of adjacent space
- Energy Performance Rating - A
- Shared Meeting Spaces
- State Of The Art Lab Facilities
Plus Ultra Manchester provides a range of versatile lab and office spaces tailored to meet diverse requirements. Each floor can accommodate multiple tenants, allowing for flexible arrangements based on specific needs. The building features customisable floor plates designed to support a mix of laboratory and office environments, making it ideal for start-ups and mature companies alike. With an emphasis on adaptability, clients can scale their operations seamlessly, ensuring they have the right space to foster innovation and drive their research and development efforts forward
- Use Class: E
- Mostly Open Floor Plan Layout
- Space is in Excellent Condition
- Laboratory
- Common Parts WC Facilities
- CL2 Labs
- Partially Fit-Out as Research and Development Space
- Fits 88 - 280 People
- Can be combined with additional space(s) for up to 217,078 sq ft of adjacent space
- Energy Performance Rating - A
- Shared Meeting Spaces
- State Of The Art Lab Facilities
Plus Ultra Manchester provides a range of versatile lab and office spaces tailored to meet diverse requirements. Each floor can accommodate multiple tenants, allowing for flexible arrangements based on specific needs. The building features customisable floor plates designed to support a mix of laboratory and office environments, making it ideal for start-ups and mature companies alike. With an emphasis on adaptability, clients can scale their operations seamlessly, ensuring they have the right space to foster innovation and drive their research and development efforts forward
- Use Class: E
- Mostly Open Floor Plan Layout
- Space is in Excellent Condition
- Laboratory
- Common Parts WC Facilities
- CL2 Labs
- Partially Fit-Out as Research and Development Space
- Fits 89 - 283 People
- Can be combined with additional space(s) for up to 217,078 sq ft of adjacent space
- Energy Performance Rating - A
- Shared Meeting Spaces
- State Of The Art Lab Facilities
Plus Ultra Manchester provides a range of versatile lab and office spaces tailored to meet diverse requirements. Each floor can accommodate multiple tenants, allowing for flexible arrangements based on specific needs. The building features customisable floor plates designed to support a mix of laboratory and office environments, making it ideal for start-ups and mature companies alike. With an emphasis on adaptability, clients can scale their operations seamlessly, ensuring they have the right space to foster innovation and drive their research and development efforts forward
- Use Class: E
- Mostly Open Floor Plan Layout
- Space is in Excellent Condition
- Laboratory
- Common Parts WC Facilities
- CL2 Labs
- Partially Fit-Out as Research and Development Space
- Fits 89 - 283 People
- Can be combined with additional space(s) for up to 217,078 sq ft of adjacent space
- Energy Performance Rating - A
- Shared Meeting Spaces
- State Of The Art Lab Facilities
Plus Ultra Manchester provides a range of versatile lab and office spaces tailored to meet diverse requirements. Each floor can accommodate multiple tenants, allowing for flexible arrangements based on specific needs. The building features customisable floor plates designed to support a mix of laboratory and office environments, making it ideal for start-ups and mature companies alike. With an emphasis on adaptability, clients can scale their operations seamlessly, ensuring they have the right space to foster innovation and drive their research and development efforts forward
- Use Class: E
- Mostly Open Floor Plan Layout
- Space is in Excellent Condition
- Laboratory
- Common Parts WC Facilities
- CL2 Labs
- Partially Fit-Out as Research and Development Space
- Fits 89 - 283 People
- Can be combined with additional space(s) for up to 217,078 sq ft of adjacent space
- Energy Performance Rating - A
- Shared Meeting Spaces
- State Of The Art Lab Facilities
Plus Ultra Manchester provides a range of versatile lab and office spaces tailored to meet diverse requirements. Each floor can accommodate multiple tenants, allowing for flexible arrangements based on specific needs. The building features customisable floor plates designed to support a mix of laboratory and office environments, making it ideal for start-ups and mature companies alike. With an emphasis on adaptability, clients can scale their operations seamlessly, ensuring they have the right space to foster innovation and drive their research and development efforts forward
- Use Class: E
- Mostly Open Floor Plan Layout
- Space is in Excellent Condition
- Laboratory
- Common Parts WC Facilities
- CL2 Labs
- Partially Fit-Out as Research and Development Space
- Fits 39 - 124 People
- Can be combined with additional space(s) for up to 217,078 sq ft of adjacent space
- Energy Performance Rating - A
- Shared Meeting Spaces
- State Of The Art Lab Facilities
Plus Ultra Manchester provides a range of versatile lab and office spaces tailored to meet diverse requirements. Each floor can accommodate multiple tenants, allowing for flexible arrangements based on specific needs. The building features customisable floor plates designed to support a mix of laboratory and office environments, making it ideal for start-ups and mature companies alike. With an emphasis on adaptability, clients can scale their operations seamlessly, ensuring they have the right space to foster innovation and drive their research and development efforts forward
- Use Class: E
- Mostly Open Floor Plan Layout
- Space is in Excellent Condition
- Laboratory
- Common Parts WC Facilities
- CL2 Labs
- Partially Fit-Out as Research and Development Space
- Fits 33 - 103 People
- Can be combined with additional space(s) for up to 217,078 sq ft of adjacent space
- Energy Performance Rating - A
- Shared Meeting Spaces
- State Of The Art Lab Facilities
Plus Ultra Manchester provides a range of versatile lab and office spaces tailored to meet diverse requirements. Each floor can accommodate multiple tenants, allowing for flexible arrangements based on specific needs. The building features customisable floor plates designed to support a mix of laboratory and office environments, making it ideal for start-ups and mature companies alike. With an emphasis on adaptability, clients can scale their operations seamlessly, ensuring they have the right space to foster innovation and drive their research and development efforts forward
- Use Class: E
- Mostly Open Floor Plan Layout
- Space is in Excellent Condition
- Laboratory
- Common Parts WC Facilities
- CL2 Labs
- Partially Fit-Out as Research and Development Space
- Fits 33 - 103 People
- Can be combined with additional space(s) for up to 217,078 sq ft of adjacent space
- Energy Performance Rating - A
- Shared Meeting Spaces
- State Of The Art Lab Facilities
| Space | Size | Term | Rate | Space Use | Condition | Available |
| Ground | 34,966 sq ft | Negotiable | Upon Application Upon Application Upon Application Upon Application | Office | Partial Fit-Out | 29/03/2028 |
| 1st Floor | 34,879 sq ft | Negotiable | Upon Application Upon Application Upon Application Upon Application | Office | Partial Fit-Out | 29/03/2028 |
| 2nd Floor | 35,362 sq ft | Negotiable | Upon Application Upon Application Upon Application Upon Application | Office | Partial Fit-Out | 29/03/2028 |
| 3rd Floor | 35,362 sq ft | Negotiable | Upon Application Upon Application Upon Application Upon Application | Office | Partial Fit-Out | 29/03/2028 |
| 4th Floor | 35,362 sq ft | Negotiable | Upon Application Upon Application Upon Application Upon Application | Office | Partial Fit-Out | 29/03/2028 |
| 5th Floor | 15,473 sq ft | Negotiable | Upon Application Upon Application Upon Application Upon Application | Office | Partial Fit-Out | 28/03/2027 |
| 6th Floor | 12,837 sq ft | Negotiable | Upon Application Upon Application Upon Application Upon Application | Office | Partial Fit-Out | 28/03/2027 |
| 7th Floor | 12,837 sq ft | Negotiable | Upon Application Upon Application Upon Application Upon Application | Office | Partial Fit-Out | 28/03/2027 |
Ground
| Size |
| 34,966 sq ft |
| Term |
| Negotiable |
| Rate |
| Upon Application Upon Application Upon Application Upon Application |
| Space Use |
| Office |
| Condition |
| Partial Fit-Out |
| Available |
| 29/03/2028 |
1st Floor
| Size |
| 34,879 sq ft |
| Term |
| Negotiable |
| Rate |
| Upon Application Upon Application Upon Application Upon Application |
| Space Use |
| Office |
| Condition |
| Partial Fit-Out |
| Available |
| 29/03/2028 |
2nd Floor
| Size |
| 35,362 sq ft |
| Term |
| Negotiable |
| Rate |
| Upon Application Upon Application Upon Application Upon Application |
| Space Use |
| Office |
| Condition |
| Partial Fit-Out |
| Available |
| 29/03/2028 |
3rd Floor
| Size |
| 35,362 sq ft |
| Term |
| Negotiable |
| Rate |
| Upon Application Upon Application Upon Application Upon Application |
| Space Use |
| Office |
| Condition |
| Partial Fit-Out |
| Available |
| 29/03/2028 |
4th Floor
| Size |
| 35,362 sq ft |
| Term |
| Negotiable |
| Rate |
| Upon Application Upon Application Upon Application Upon Application |
| Space Use |
| Office |
| Condition |
| Partial Fit-Out |
| Available |
| 29/03/2028 |
5th Floor
| Size |
| 15,473 sq ft |
| Term |
| Negotiable |
| Rate |
| Upon Application Upon Application Upon Application Upon Application |
| Space Use |
| Office |
| Condition |
| Partial Fit-Out |
| Available |
| 28/03/2027 |
6th Floor
| Size |
| 12,837 sq ft |
| Term |
| Negotiable |
| Rate |
| Upon Application Upon Application Upon Application Upon Application |
| Space Use |
| Office |
| Condition |
| Partial Fit-Out |
| Available |
| 28/03/2027 |
7th Floor
| Size |
| 12,837 sq ft |
| Term |
| Negotiable |
| Rate |
| Upon Application Upon Application Upon Application Upon Application |
| Space Use |
| Office |
| Condition |
| Partial Fit-Out |
| Available |
| 28/03/2027 |
Ground
| Size | 34,966 sq ft |
| Term | Negotiable |
| Rate | Upon Application |
| Space Use | Office |
| Condition | Partial Fit-Out |
| Available | 29/03/2028 |
Plus Ultra Manchester provides a range of versatile lab and office spaces tailored to meet diverse requirements. Each floor can accommodate multiple tenants, allowing for flexible arrangements based on specific needs. The building features customisable floor plates designed to support a mix of laboratory and office environments, making it ideal for start-ups and mature companies alike. With an emphasis on adaptability, clients can scale their operations seamlessly, ensuring they have the right space to foster innovation and drive their research and development efforts forward
- Use Class: E
- Partially Fit-Out as Research and Development Space
- Mostly Open Floor Plan Layout
- Fits 88 - 280 People
- Space is in Excellent Condition
- Can be combined with additional space(s) for up to 217,078 sq ft of adjacent space
- Laboratory
- Energy Performance Rating - A
- Common Parts WC Facilities
- Shared Meeting Spaces
- CL2 Labs
- State Of The Art Lab Facilities
1st Floor
| Size | 34,879 sq ft |
| Term | Negotiable |
| Rate | Upon Application |
| Space Use | Office |
| Condition | Partial Fit-Out |
| Available | 29/03/2028 |
Plus Ultra Manchester provides a range of versatile lab and office spaces tailored to meet diverse requirements. Each floor can accommodate multiple tenants, allowing for flexible arrangements based on specific needs. The building features customisable floor plates designed to support a mix of laboratory and office environments, making it ideal for start-ups and mature companies alike. With an emphasis on adaptability, clients can scale their operations seamlessly, ensuring they have the right space to foster innovation and drive their research and development efforts forward
- Use Class: E
- Partially Fit-Out as Research and Development Space
- Mostly Open Floor Plan Layout
- Fits 88 - 280 People
- Space is in Excellent Condition
- Can be combined with additional space(s) for up to 217,078 sq ft of adjacent space
- Laboratory
- Energy Performance Rating - A
- Common Parts WC Facilities
- Shared Meeting Spaces
- CL2 Labs
- State Of The Art Lab Facilities
2nd Floor
| Size | 35,362 sq ft |
| Term | Negotiable |
| Rate | Upon Application |
| Space Use | Office |
| Condition | Partial Fit-Out |
| Available | 29/03/2028 |
Plus Ultra Manchester provides a range of versatile lab and office spaces tailored to meet diverse requirements. Each floor can accommodate multiple tenants, allowing for flexible arrangements based on specific needs. The building features customisable floor plates designed to support a mix of laboratory and office environments, making it ideal for start-ups and mature companies alike. With an emphasis on adaptability, clients can scale their operations seamlessly, ensuring they have the right space to foster innovation and drive their research and development efforts forward
- Use Class: E
- Partially Fit-Out as Research and Development Space
- Mostly Open Floor Plan Layout
- Fits 89 - 283 People
- Space is in Excellent Condition
- Can be combined with additional space(s) for up to 217,078 sq ft of adjacent space
- Laboratory
- Energy Performance Rating - A
- Common Parts WC Facilities
- Shared Meeting Spaces
- CL2 Labs
- State Of The Art Lab Facilities
3rd Floor
| Size | 35,362 sq ft |
| Term | Negotiable |
| Rate | Upon Application |
| Space Use | Office |
| Condition | Partial Fit-Out |
| Available | 29/03/2028 |
Plus Ultra Manchester provides a range of versatile lab and office spaces tailored to meet diverse requirements. Each floor can accommodate multiple tenants, allowing for flexible arrangements based on specific needs. The building features customisable floor plates designed to support a mix of laboratory and office environments, making it ideal for start-ups and mature companies alike. With an emphasis on adaptability, clients can scale their operations seamlessly, ensuring they have the right space to foster innovation and drive their research and development efforts forward
- Use Class: E
- Partially Fit-Out as Research and Development Space
- Mostly Open Floor Plan Layout
- Fits 89 - 283 People
- Space is in Excellent Condition
- Can be combined with additional space(s) for up to 217,078 sq ft of adjacent space
- Laboratory
- Energy Performance Rating - A
- Common Parts WC Facilities
- Shared Meeting Spaces
- CL2 Labs
- State Of The Art Lab Facilities
4th Floor
| Size | 35,362 sq ft |
| Term | Negotiable |
| Rate | Upon Application |
| Space Use | Office |
| Condition | Partial Fit-Out |
| Available | 29/03/2028 |
Plus Ultra Manchester provides a range of versatile lab and office spaces tailored to meet diverse requirements. Each floor can accommodate multiple tenants, allowing for flexible arrangements based on specific needs. The building features customisable floor plates designed to support a mix of laboratory and office environments, making it ideal for start-ups and mature companies alike. With an emphasis on adaptability, clients can scale their operations seamlessly, ensuring they have the right space to foster innovation and drive their research and development efforts forward
- Use Class: E
- Partially Fit-Out as Research and Development Space
- Mostly Open Floor Plan Layout
- Fits 89 - 283 People
- Space is in Excellent Condition
- Can be combined with additional space(s) for up to 217,078 sq ft of adjacent space
- Laboratory
- Energy Performance Rating - A
- Common Parts WC Facilities
- Shared Meeting Spaces
- CL2 Labs
- State Of The Art Lab Facilities
5th Floor
| Size | 15,473 sq ft |
| Term | Negotiable |
| Rate | Upon Application |
| Space Use | Office |
| Condition | Partial Fit-Out |
| Available | 28/03/2027 |
Plus Ultra Manchester provides a range of versatile lab and office spaces tailored to meet diverse requirements. Each floor can accommodate multiple tenants, allowing for flexible arrangements based on specific needs. The building features customisable floor plates designed to support a mix of laboratory and office environments, making it ideal for start-ups and mature companies alike. With an emphasis on adaptability, clients can scale their operations seamlessly, ensuring they have the right space to foster innovation and drive their research and development efforts forward
- Use Class: E
- Partially Fit-Out as Research and Development Space
- Mostly Open Floor Plan Layout
- Fits 39 - 124 People
- Space is in Excellent Condition
- Can be combined with additional space(s) for up to 217,078 sq ft of adjacent space
- Laboratory
- Energy Performance Rating - A
- Common Parts WC Facilities
- Shared Meeting Spaces
- CL2 Labs
- State Of The Art Lab Facilities
6th Floor
| Size | 12,837 sq ft |
| Term | Negotiable |
| Rate | Upon Application |
| Space Use | Office |
| Condition | Partial Fit-Out |
| Available | 28/03/2027 |
Plus Ultra Manchester provides a range of versatile lab and office spaces tailored to meet diverse requirements. Each floor can accommodate multiple tenants, allowing for flexible arrangements based on specific needs. The building features customisable floor plates designed to support a mix of laboratory and office environments, making it ideal for start-ups and mature companies alike. With an emphasis on adaptability, clients can scale their operations seamlessly, ensuring they have the right space to foster innovation and drive their research and development efforts forward
- Use Class: E
- Partially Fit-Out as Research and Development Space
- Mostly Open Floor Plan Layout
- Fits 33 - 103 People
- Space is in Excellent Condition
- Can be combined with additional space(s) for up to 217,078 sq ft of adjacent space
- Laboratory
- Energy Performance Rating - A
- Common Parts WC Facilities
- Shared Meeting Spaces
- CL2 Labs
- State Of The Art Lab Facilities
7th Floor
| Size | 12,837 sq ft |
| Term | Negotiable |
| Rate | Upon Application |
| Space Use | Office |
| Condition | Partial Fit-Out |
| Available | 28/03/2027 |
Plus Ultra Manchester provides a range of versatile lab and office spaces tailored to meet diverse requirements. Each floor can accommodate multiple tenants, allowing for flexible arrangements based on specific needs. The building features customisable floor plates designed to support a mix of laboratory and office environments, making it ideal for start-ups and mature companies alike. With an emphasis on adaptability, clients can scale their operations seamlessly, ensuring they have the right space to foster innovation and drive their research and development efforts forward
- Use Class: E
- Partially Fit-Out as Research and Development Space
- Mostly Open Floor Plan Layout
- Fits 33 - 103 People
- Space is in Excellent Condition
- Can be combined with additional space(s) for up to 217,078 sq ft of adjacent space
- Laboratory
- Energy Performance Rating - A
- Common Parts WC Facilities
- Shared Meeting Spaces
- CL2 Labs
- State Of The Art Lab Facilities
Property Overview
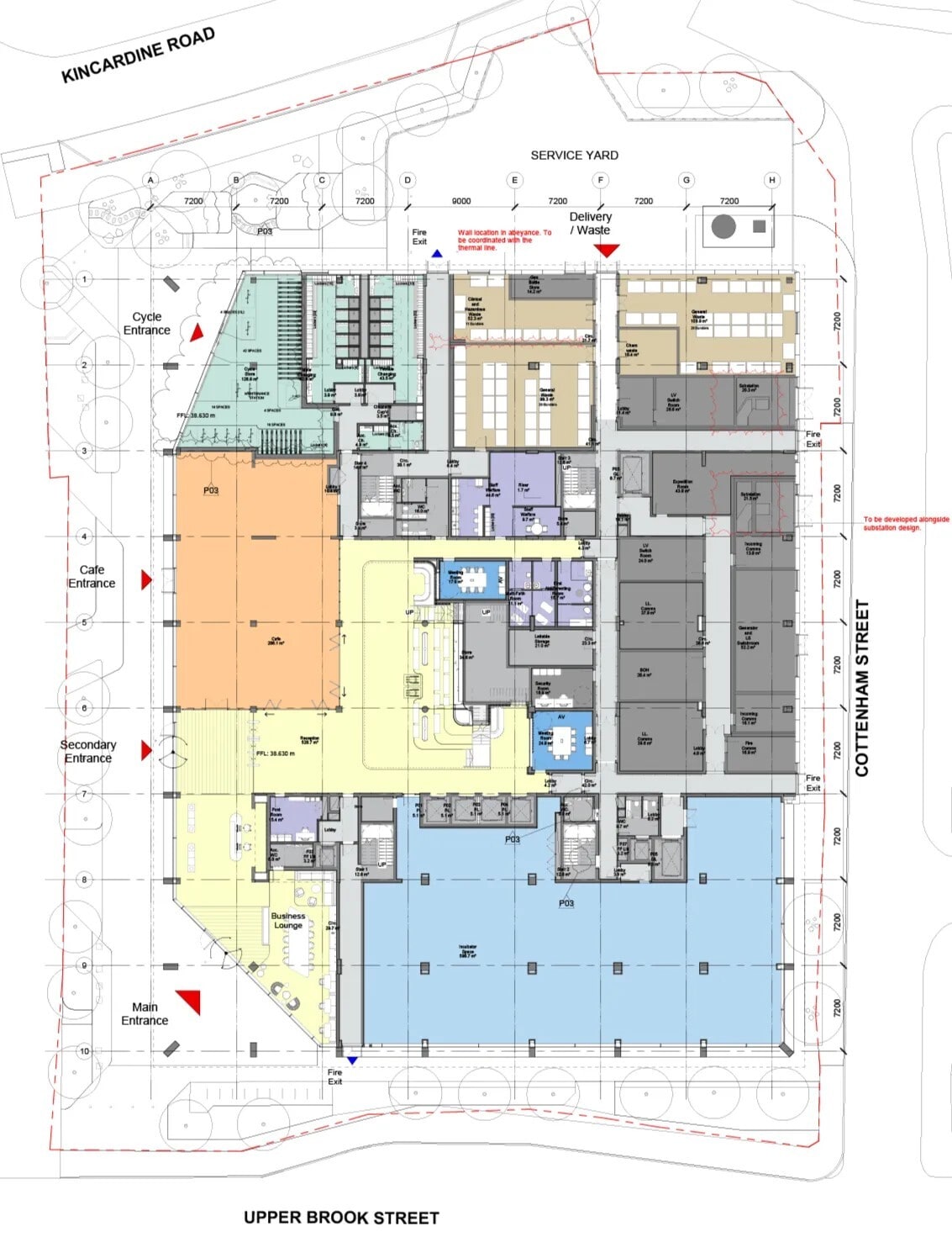
Plus Ultra Manchester sits in the heart of the Oxford Road Innovation District, Manchester’s Knowledge Quarter. Plus Ultra Manchester, due for completion in Q2 2027, serves as a vital centre for science and health innovation. With state-of-the-art lab facilities and a highly collaborative environment, it attracts leading organisations in life sciences and health research, and advanced materials and technology.
- Bio-Tech/ Lab Space
Property Facts
Presented by
Company Not Provided
Plus Ultra Manchester | 60 Upper Brook St
Hmm, there seems to have been an error sending your message. Please try again.
Thanks! Your message was sent.
















