Your email has been sent.
7A Coppetts Rd 1,344 sq ft of Assignment Available in London N10 1NN



Assignment Highlights
- Modern contemporary finish
- Parking
- Lots of natural light
All Available Space(1)
Display Rent as
- Space
- Size
- Term
- Rate
- Space Use
- Condition
- Available
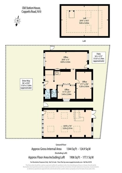
Presented in excellent condition throughout, the premises provide two main open-plan work areas, an uncovered loft/storage area, and off-street parking for up to four vehicles to the front. To the rear, there is a private patio area, ideal for breaks or informal meetings.
- Use Class: E
- Fits 4 - 11 People
- Central Air Conditioning
- Energy Performance Rating - D
- Open-Plan
- Fully air-conditioned interior
- Excellent natural light
- Assignment space available from current tenant
- Space is in Excellent Condition
- Natural Light
- Exclusive WC facilities
- Wooden Floors
- Exposed wooden flooring
| Space | Size | Term | Rate | Space Use | Condition | Available |
| Ground | 1,344 sq ft | - | £23.81 /sq ft pa £1.98 /sq ft pcm £32,001 pa £2,667 pcm | Office | Partial Fit-Out | Under offer |
Ground
| Size |
| 1,344 sq ft |
| Term |
| - |
| Rate |
| £23.81 /sq ft pa £1.98 /sq ft pcm £32,001 pa £2,667 pcm |
| Space Use |
| Office |
| Condition |
| Partial Fit-Out |
| Available |
| Under offer |
Ground
| Size | 1,344 sq ft |
| Term | - |
| Rate | £23.81 /sq ft pa |
| Space Use | Office |
| Condition | Partial Fit-Out |
| Available | Under offer |
Presented in excellent condition throughout, the premises provide two main open-plan work areas, an uncovered loft/storage area, and off-street parking for up to four vehicles to the front. To the rear, there is a private patio area, ideal for breaks or informal meetings.
- Use Class: E
- Assignment space available from current tenant
- Fits 4 - 11 People
- Space is in Excellent Condition
- Central Air Conditioning
- Natural Light
- Energy Performance Rating - D
- Exclusive WC facilities
- Open-Plan
- Wooden Floors
- Fully air-conditioned interior
- Exposed wooden flooring
- Excellent natural light
Property Overview
This detached single-storey building offers high-quality, flexible office or studio accommodation in a desirable location on the border of Muswell Hill and Fortis Green, close to local shops, East Finchley tube station and Muswell hill Broadway.
- Courtyard
- Outdoor Seating
Property Facts
| Total Space Available | 1,344 sq ft | Net Internal Area (NIA) | 1,344 sq ft |
| Property Type | Office | Year Built | 1970 |
| Costar Property Class | C |
| Total Space Available | 1,344 sq ft |
| Property Type | Office |
| Costar Property Class | C |
| Net Internal Area (NIA) | 1,344 sq ft |
| Year Built | 1970 |
Select Tenants
- Floor
- Tenant Name
- Industry
- GRND
- Tech Projects Ltd
- Professional, Scientific, and Technical Services
Presented by
7A Coppetts Rd
Hmm, there seems to have been an error sending your message. Please try again.
Thanks! Your message was sent.



