Office in London available to rent
6,539

Office Spaces to Rent in London

Explore the Latest Available Office Spaces & Serviced Offices to Rent in London

Long-lease office spaces alongside fully serviced and managed offices, ideal for businesses seeking a professional environment with flexibility to grow

More details for Westfield Ave, London - Office to Rent
  • Matterport 3D Tour

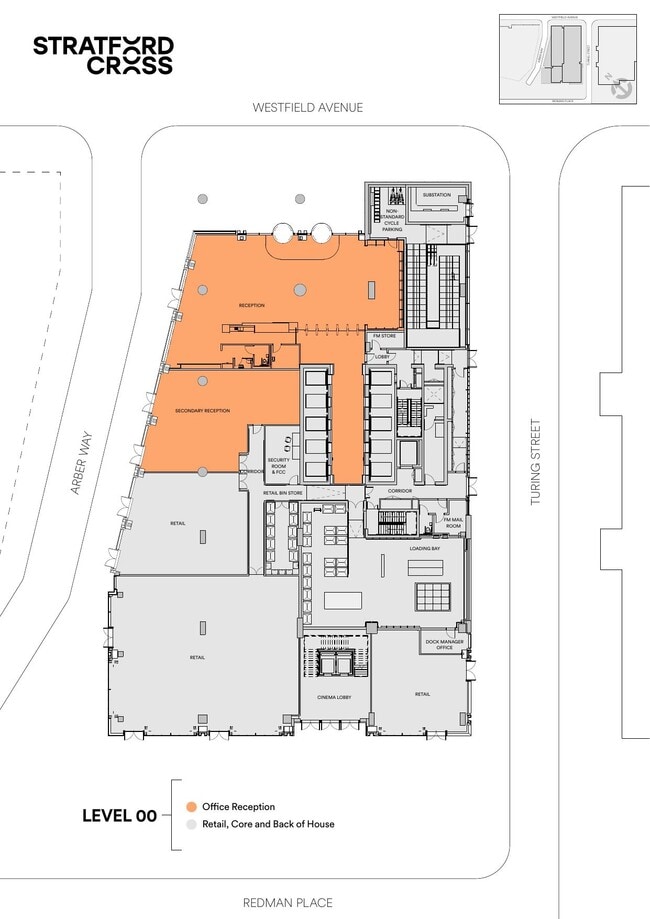
The Turing Building - Westfield Ave

London, E20 1HZ

  • Office to Let
  • £49.50 sq ft pa
  • 8,657 - 259,974 sq ft
  • 2 Spaces Available Now
  • Energy Performance: A
  • Air Conditioning
  • Natural Light
  • Balcony
  • Kitchen
  • Roof Terrace

London Office to Rent - Eastern Fringe

Welcome to The Turing Building, a next-generation commercial office tower forming a key part of the Stratford Cross district in East London's cultural heart. Offering over 350,000 square feet of sustainable, Grade A workspace, The Turing Building's design has redefined the workplace, offering a unique environment to excite, enable, and inspire individuals to realise their full potential. Located in London's powerhouse of culture, Stratford's dynamic, well-connected neighbourhood blends research and education with culture and innovation, offering an inspiring destination where businesses thrive. Nestled between 560 acres of the Queen Elizabeth Olympic Park, the creative institutions of the East Bank, the London Stadium, and a vast array of shopping, dining, and entertainment experiences, including nearby Westfield Stratford City, this ever-evolving destination at the heart of Stratford has it all. Surrounded by amazing neighbourhoods and just a five-minute stroll from some of the capital's most incredible experiences, you'll never be short of things to do in Stratford. Designed for flexibility, The Turing Building enjoys efficient, clear floor plates, green work and study spaces, flexible event space, and a biodiverse roof terrace with expansive views of the capital, offering occupiers a world-class experience to match their ambitions. Realise the building's splendour upon entering, where individuals are greeted by a stunning, active lobby with an integrated three-screen cinema and retail-led ground floor bursting with life, and embedding this building as an asset for the wider community. The building's ambition was to create an exemplary commercial building designed to attract tenants, inspire collaboration, and support new ways of working whilst reducing carbon footprints and making positive impacts. Through exceptional workspace design, The Turing Building has enhanced the well-being and happiness of occupiers with careful consideration given to better air quality, outdoor workspaces, and flexible layouts to foster collaboration whilst combatting carbon emissions and occupation costs. Save on energy with 100% low-energy LED lighting to create the optimal working environment and achieve your Net Zero Carbon goals by becoming part of the largest decentralised energy scheme in the UK, with every building within Stratford Cross powered by biomass boilers at Stratford District's Heating and Cooling network's energy centres. Buoyed by the legacy of the Olympics, Stratford's connectivity has seen significant improvements over the last decade. Find ample cycle paths and end-of-trip facilities encouraging green travel, numerous nearby bus stops servicing the local area, and unrivalled public transport connections at Stratford Station, offering lightning-fast connections to Liverpool Street, Tottenham Court Road, and Paddington in less than 20 minutes. With the Jubilee Line, the Elizabeth Line, the DLR, and National Rail services all accessible, travel is a breeze, with Stratford establishing itself as one of the best-connected destinations in London and the ideal neighbourhood to place your business.

Contacts:

Knight Frank LLP

BNP

CBRE

Date on Market:

28/04/2026

Hide
See More
More details for 566 Chiswick High Rd, London - Co-working to Rent

Regus Chiswick Park - 566 Chiswick High Rd

London, W4 5YA

  • Co-working to Let
  • 50 - 55,348 sq ft
  • Air Conditioning
  • Natural Light
  • Security System
  • Commuter Rail
  • 24 Hour Access
  • CCTV (Closed Circuit Television Monitoring)
  • Controlled Access
  • DDA Compliant
  • Smoke Detector
  • Reception

London Co-working to Rent

Chiswick Park offers modern offices and coworking spaces at 566 Chiswick High Road, enhancing your business presence with proximity to Chiswick House and Gardens and excellent transport links. Enjoy an on-site fitness centre and easy access to local amenities like Waitrose, Starbucks, and Virgin Active, supporting a productive and professional work environment. Chiswick Park is an ideal location for businesses seeking strategic advantages. Positioned near the Hounslow Council Office, it offers proximity to key decision-makers and local government services. Excellent connectivity via major transport routes ensures easy access for clients and employees. The area’s professional appeal is enhanced by nearby Chiswick Health Centre and Virgin Active Chiswick Riverside, supporting employee well-being. With modern offices designed for productivity and flexible coworking spaces fostering collaboration, Chiswick Park provides operational efficiency and cost management. Establish your business presence here for unparalleled access to local resources and a thriving commercial community. Find a place to thrive at Regus Chiswick Park: • Professional Offices: Elegant office space equipped with modern furniture and amenities, easily scalable for individual professionals or entire teams. Move into a turnkey office, pay by day, or custom-tailor a unique suite to accelerate organizational success. • Community: Work wherever you need to be and discover a dynamic mix of businesses and like-minded individuals. Regular networking and personal growth events and sociable workspaces foster collaboration and open new opportunities for your business. • Virtual Workspace: Build your presence anywhere in the world with a new virtual address. Whether simply to forward mail, hold a meeting, or even answer calls, Regus’ virtual offices have the services you need. • Collaboration: Host a meeting in every major city in the world and impress local clients with industry-leading technologies in one of the fully serviced meeting spaces. There is a room for every need with day-of booking for anything from private conference rooms to inspiring training spaces. • Join the Club: Regus’ thriving global network of beautifully designed offices provides the flexibility to work anywhere and everywhere. Reserve space on the move via the Regus app and get to work from any of the business lounges, dedicated desks, or your own private office.

Contact:

IW Group Services (UK) Ltd

Property Type:

Office

Date on Market:

25/02/2026

Hide
See More
More details for 6 New Bridge St, London - Office to Rent
  • Matterport 3D Tour

6 New Bridge St

London, EC4V 6AB

  • Office to Let
  • £49.50 - £59.50 sq ft pa
  • 3,569 - 10,988 sq ft
  • 1 Space Available Now
  • Energy Performance: B
  • Air Conditioning
  • Natural Light
  • Raised Floor
  • Bicycle Storage
  • Suspended Ceilings
  • DDA Compliant
  • Reception

London Office to Rent - City of London

A prominent office building on the west side of the thoroughfare, just south of Ludgate Circus, located where Midtown meets The City. Enter the property via a light-filled, manned main building reception, which has recently been refreshed, with newly refurbished passenger lifts to all floors. The following accommodation is available: Ground floor - Fully fitted & furnished suite comprising 3,807 sq ft, providing 3/4 meeting rooms, open plan office accommodation arranged as 40 workstations and a kitchen/breakout area. The accommodation is fully cabled, with a separate (cooled) comms room. The space is approached via the main building reception, however, a tenant could make use of a private entrance direct from Bride Lane - see suggested layouts and visuals herein. 2nd floor - 3,612 sq ft. The accommodation has been refurbished to open plan Cat A condition. 3rd floor - 3,569 sq ft. The accommodation has been refurbished to open plan Cat A condition. Communications are excellent with the modernised Blackfriars Station (mainline, Circle & District lines) and City Thameslink both within a two-minute walk, and St. Paul’s Underground Station (Central line) close by. Farringdon Station, London's premiere transport hub, with underground & mainline connections to the North, East, South & West - including the new Elizabeth Line - is less than 10 minute's walk.

Contact:

Gale Priggen & Company

Date on Market:

05/06/2024

Hide
See More
More details for 2-16 Bayford St, London - Office, Office / Medical to Rent

Smokehaus - 2-16 Bayford St

London, E8 3SE

  • Build-to-Rent to Let
  • £25.00 - £58.48 sq ft pa
  • 208 - 17,343 sq ft
  • 12 Spaces Available Now
See More
More details for 181A High Holborn, London - Office to Rent

Esavian House - 181A High Holborn

London, WC1V 7AP

  • Office to Let
  • £20.00 - £130.00 sq ft pa
  • 200 - 29,270 sq ft
  • 2 Spaces Available Now
  • Natural Light
  • Bicycle Storage
  • Security System
  • Concierge
  • Controlled Access
  • Reception
  • Roof Terrace

London Office to Rent - Camden, London

Esavian House offers contemporary, fully serviced workspaces designed for ambitious businesses that want flexibility, style, and a genuinely enjoyable place to work. Move-in-ready private offices, collaborative meeting spaces, and premium amenities await, with all-inclusive, flexible licence terms. Esavian House can accommodate approximately 350 persons, allowing any user from a full-floor corporate occupant to individuals seeking a small, short-term workspace. Designed with the occupier in mind, Esavian House’s comprehensive features and services extend the efficacy of its spaces alone. Concierge-style reception, daily cleaning and maintenance, controlled access, and an entire dedicated team ensure a worry-free experience. Occupants also enjoy shared breakout spaces, fully equipped kitchens with complimentary coffee and tea, showers, secure cycle storage, and the signature communal roof terrace. Right in the heart of High Holborn at number 181A, Esavian House Holborn puts occupants in one of London’s buzzing, best-connected neighbourhoods and business districts. Holborn is a long-established hub for legal, financial, professional, and creative businesses, with excellent access across the West End, City, and beyond. Dozens of cafés, restaurants, gyms, local pubs, and more are waiting to be explored just outside the doorstep, capping off this holistic opportunity. Get in touch to learn more.

Contact:

Esavian House Offices Ltd

Date on Market:

02/03/2026

Hide
See More
More details for 450 Bath Rd, West Drayton - Co-working to Rent

Regus Heathrow Bath Road - 450 Bath Rd

West Drayton, UB7 0EB

  • Co-working to Let
  • 50 - 27,568 sq ft
See More
More details for 220 Blackfriars Rd, London - Office to Rent

220 Blackfriars Rd

London, SE1 8NL

  • Office to Let
  • 2,675 - 219,337 sq ft
  • 1 Space Available Now
  • Concierge
  • 24 Hour Access
  • Conferencing Facility
  • Reception
  • Roof Terrace

London Office to Rent - Kennington, Lambeth

Discover a workspace designed for the modern professional, cut from the cloth of collaboration and creativity, and poised to redefine the South Bank skyline. 220 Blackfriars is set to complete construction in Q4 2027 and tower 22 storeys over London SE1. The property’s average floor plates of 11,768 square feet are highly customisable and levels three through 20 feature terraces. From coffee catchups to private meetings and events, 220 Blackfriars has it covered before you even reach your office. A sophisticated double-height reception and client lounge welcome guests whilst a first-floor business gallery includes a coffee bar, meeting rooms and office pods. Distinguishing 220 Blackfriars from its professional neighbours is its comprehensive offering of Grade A on-site features. Cyclists enjoy their own dedicated entrance, lift, 445 bike racks, and cycle concierge, plus end-of-trip club-style showers and changing rooms. The marquee amenity is the twenty-first floor Sky Lounge, featuring relaxed working spaces, a bar, meeting rooms, an auditorium, a communal terrace, and flexible event space, all against a backdrop of inspiring 360-degree views. Brilliantly connected, 220 Blackfriars weaves together Southwark, Blackfriars, Waterloo, London Bridge, and South Bank neighbourhoods. SE1 delivers on every front. Cultural heavyweights — the Tate Modern, Young Vic, and Royal Festival Hall — sit alongside Borough Market, Flat Iron Square, and a deep roster of restaurants, cafés, bars, and traditional pubs. For those who like to move, there are cycle routes, running paths, and a plethora of gyms and clubs. And when the pace needs to slow down, Nelson Square Park, Mint Street Park, and Bernie Spain Gardens all offer a genuine green escape within minutes of the office. Become a part of this people-powered mission, for those who believe that business is just as much about caring as it is about thriving.

Contacts:

Newmark

Savills

Date on Market:

07/06/2024

Hide
See More
More details for 3 Glade Walk, London - Office, Retail to Rent
  • Matterport 3D Tour

Portland Place, East Village - 3 Glade Walk

London, E20 1DN

  • Retail to Let
  • £199,125 pa
  • 7,965 - 17,115 sq ft
  • 2 Spaces Available Now

London Office, Retail to Rent - Eastern Fringe

Welcome to East Village, a vibrant neighbourhood in the up-and-coming Stratford, firmly established in the heart of East London. East Village, Get Living’s flagship neighbourhood, was launched in 2013 in the former London 2012 Athletes’ Village. It is now the UK's largest residential rental scheme, with 2,445 homes in its thriving community. Get Living’s latest rental building was completed in December 2021. Portlands Place comprises 524 high-quality apartments and 17,000 square feet of commercial retail space across two towers, Skylark Point and Hightail Point, linked by a sky bridge amenity space on the 10th floor. Attracting people of all ages and interests, East Village has unlocked a new kind of London living. Experience the area's close-knit community feel, surrounded by landscaped parklands and alive with community events, with all the benefits of big city living. With over 4,000 new homes coming to the area and an exciting mix of innovative and independent retail and food businesses, East Village will soon become East London's must-visit destination. Occupying a prominent position within Zone 2 and bordering booming Stratford, Westfield Stratford City, and Hackney Wick, East Village is at the heart of thriving East London, near Stratford, Westfield Stratford City, and Hackney Wick. Commuting is a breeze, with over 200 trains running hourly from nearby tube and rail links. Reach East Village from cultural hotspots such as Oxford Circus and Tottenham Court Road within 25 minutes via the recently opened Elizabeth Line.

Contact:

Get Living

Date on Market:

15/08/2023

Hide
See More
More details for 46-48 Webber St, London - Office to Rent
  • Matterport 3D Tour

Trident House - Self-Contained Offices - 46-48 Webber St

London, SE1 8QW

  • Office to Let
  • £52.50 sq ft pa
  • 2,158 - 4,316 sq ft
  • 1 Space Available Now
  • Energy Performance: B
  • Energy Performance: C
  • Air Conditioning
  • Bicycle Storage
  • Security System
  • Controlled Access
  • Kitchen
  • Smoke Detector

London Office to Rent - Kennington, Lambeth

Trident House, 46-48 Webber Street, offers contemporary and stylish self-contained offices arranged over two floors, totalling 4316 square feet (401 square meters). The floors are available either together or separately. Offering fully furnished spaces with modern features, including collaboration/meeting spaces, workstations, and LG7-compliant suspended lighting. Finished to a high specification with WCs and shower facilities, bike racks, lift access, a fitted kitchen, and an attractive rear communal courtyard. Convenient lifestyle address near shopping and dining, including The Cut with its parade of boutique shops, restaurants, and more. The old Vic is situated close by. The property is conveniently located less than 10 minutes walk from Waterloo Station (Jubilee/Northern lines) and Southwark Underground (Jubilee line). Blackfriars (Thames Link line and underground are also within close proximity). The offices are offered on a new lease(s) for a term(s) by arrangement at an equivalent exclusive rent of £52.50 psf or for sale on an effective freehold interest at £1.2M plus VAT per floor, for the benefit of the virtual freehold. The available space is predominantly arranged in an open plan with the benefit of meeting rooms and being entirely self-contained to provide a total of 4,316 square feet over the vacant floors. Trident House’s modern upgrades include efficient heating and cooling units, LG7-compliant suspended lighting, bike racks, WCs and shower facilities, a lift, a fitted kitchen, and a refurbished entry hall with 24-hour access. There is also shared use of a south-facing communal terrace. Located at 46-48 Webber Street, this address provides convenience directly from the doorstep, with Fifth Element Bar and Kitchen, The Crown, Costa Coffee, and renowned restaurants.

Contacts:

Heyford Property Services Ltd

USP.London

Date on Market:

26/11/2024

Hide
See More
More details for 79-89 Lots Rd, London - Office to Rent

Chelsea Reach - 79-89 Lots Rd

London, SW10 0RN

  • Office to Let
  • £45.00 sq ft pa
  • 99 - 6,805 sq ft
  • 2 Spaces Available Now
  • Air Conditioning
  • Natural Light
  • Security System
  • 24 Hour Access
  • Controlled Access

London Office to Rent - Chelsea

Welcome to Chelsea Reach. Nestled in the heart of London's vibrant interior design hub, Chelsea Reach’s prime location places occupants at the epicenter of creativity and innovation, surrounded by showrooms and offices of London's leading fashion and interior design studios. Situated close to the majestic Thames River, Chelsea Reach offers not only a dynamic commercial environment but also stunning panoramic views of the iconic London skyline and a sense of community rarely found in the 21st-century global metropolis. Here, artisans and professionals find inspiration at every turn, making it the perfect place to thrive in the exceptionally dynamic world of interior design and fashion. Explore the possibilities, both creatively and commercially, and become immersed in this thriving and inspiring setting. Chelsea Reach offers office suites in various sizes to meet diverse business needs, available with new leases for up to 5 years. The current tenant mix highlights the creativity and flexibility of this opportunity, such as SW10 Studios, Todhunter Earle Interiors, Schumacher, McLaren Excell, and Xhinu Consulting. Essential features and services include CCTV security, utilities, 24-hour access, cleaning, showers, on-site parking, cycle storage, kitchenettes, showers, and more. Occupants enjoy all of these perks and can boast a prestigious trade address in this brimming design hub. Chelsea Reach is conveniently located just a five-minute walk from Imperial Wharf train station, which offers connections to Shepherd's Bush, Stratford, and Clapham Junction. Fulham Broadway tube station is also within walking distance of the property. In addition to the excellent transport links, there are many food outlets selling lunches within the immediate vicinity, plus boutiques, essential stores, local pubs, luxury hotels, fitness options, Westfield Park, and the River Thames are also just a few minutes' walk away.

Contact:

Frost Meadowcroft

Date on Market:

24/04/2026

Hide
See More
More details for 1 Duchess St, London - Office to Rent

1 Duchess St

London, W1W 6AN

  • Office to Let
  • £62.00 - £85.00 sq ft pa
  • 598 - 1,985 sq ft
  • 2 Spaces Available Now
See More
More details for 25 Devonshire Pl, London - Office / Medical to Rent

25 Devonshire Pl

London, W1G 6JD

  • Office / Medical to Let
  • £73.02 sq ft pa
  • 1,479 sq ft
  • 1 Space Available Now
See More
More details for 18-20 Shad Thames, London - Office to Rent
  • Matterport 3D Tour

Saffron Wharf - 18-20 Shad Thames

London, SE1 2YQ

  • Office to Let
  • £30.93 sq ft pa
  • 970 sq ft
  • Air Conditioning
  • Natural Light
  • Security System
  • Metro/Underground
  • Wheelchair Accessible
  • Smoke Detector

London Office to Rent - Southwark, London

Secure an exclusive workspace in the sought-after South Bank submarket with this fully fitted duplex office at 18-20 Shad Thames, Saffron Wharf. Saffron Wharf is a stylish three-storey, mixed-use building with apartments above retail and office space along the River Neckinger. It features impressive floor-to-ceiling glass frontage at the ground level, secure allocated parking, and access to the resident gym for commercial occupants. The 970-square-foot accommodation offered here comprises an entrance on the ground floor and a lower office/retail space. Stairs then lead to a half landing providing access to a fitted kitchen and WC. Above, the first-floor space features a second WC and a meeting area. The high degree of configurability makes this an ideal opportunity for financial services, creative offices, retail storefronts, and many other users, with a dynamic location to match. 18-20 Shad Thames is a centralized address that places occupants amidst a vibrant landscape of premier amenities, bustling professional hubs, cultural hotspots, and crucial transport links. A short stroll to the River Thames leads to a plethora of waterfront restaurants and pubs, with more eateries, bars, supermarkets, spas, fitness centers, parks, and boutique shops a few blocks south. Drivers can reach the city centre easily via the London and Tower Bridges, while public transit users walk to bus stops linking to the rail network.

Contact:

Hastings International Limited

Date on Market:

15/10/2025

Hide
See More
More details for 89 Fleet St, London - Office to Rent

89 Fleet St

London, EC4Y 1DH

  • Office to Let
  • £43.20 - £54.00 sq ft pa
  • 170 - 500 sq ft
  • 2 Spaces Available Now
See More
More details for 9 High St, West Drayton - Office to Rent

9 High St

West Drayton, UB7 7QG

  • Office to Let
  • £8.57 sq ft pa
  • 1,400 sq ft
  • 1 Space Available Now
See More
More details for 103 Manor Way, Ruislip - Office to Rent

103 Manor Way

Ruislip, HA4 8HW

  • Office to Let
  • £30.38 sq ft pa
  • 1,646 sq ft
  • 1 Space Available Now
See More
More details for 35-44 Wates Way, Mitcham - Office, Industrial to Rent

35-44 Wates Way

Mitcham, CR4 4HR

  • Industrial to Let
  • £12.62 sq ft pa
  • 1,568 - 7,921 sq ft
  • 1 Space Available Now
See More
More details for 37 Crawford St, London - Office, Office / Retail to Rent

37 Crawford St

London, W1H 1HA

  • Office to Let
  • £31.21 sq ft pa
  • 454 - 2,272 sq ft
  • 5 Spaces Available Now
See More
More details for 314-320 Grays Inn Rd, London - Office, Retail to Rent

Acorn House - 314-320 Grays Inn Rd

London, WC1X 8DP

  • Office to Let
  • £65,000 pa
  • 975 - 4,528 sq ft
  • 3 Spaces Available Now
See More
More details for 12 Cock Ln, London - Office to Rent

Red Lion Buildings - 12 Cock Ln

London, EC1A 9BU

  • Office to Let
  • £57.50 - £62.50 sq ft pa
  • 1,389 - 10,846 sq ft
  • 3 Spaces Available Now
See More
More details for 35-36 Bridle Ln, London - Office to Rent

Bridle House - 35-36 Bridle Ln

London, W1F 9BZ

  • Office to Let
  • £80.61 sq ft pa
  • 321 - 2,419 sq ft
  • 1 Space Available Now
See More
1-23 of 500

Frequently Asked Questions About Renting Offices in London

Search all UK office space
How many offices to rent in London are available currently?
There are 6,539 Office Spaces available to let in and near to London. These London Office Space listings feature a variety of spaces, with an average size of 13,658 sq ft. The largest London Office Space size available to rent is 384,381 sq ft. The thriving commercial centre and excellent transport links in London make it an ideal location for businesses to find suitable Office Space to rent.
How much does it cost to rent an office in London?
The average asking rent for Office Space in London is about £40 per sq ft. Office rent can vary significantly depending on location, office size, and amenities. Prime city centre offices command premium rates, while more affordable options can be found in emerging business districts. Market trends show fluctuations due to demand, new developments, and economic factors. Whether you're a startup or an established business, finding the right office at the best price requires up-to-date market insights. Stay informed on London office rental trends to secure the ideal workspace for your needs.
What sizes of office space are available to rent in London and what would suit my business?
Currently in London the largest Office Space available to rent is 384,381 sq ft and the smallest is 1 sq ft. The average size is approximately 13,658 sq ft. Office Space Guide: Floor Area Per Employee When choosing an office, it's essential to ensure the right amount of floor area per employee for productivity and comfort. Here’s a general guideline based on different office layouts: Open-Plan Office (Efficient Use of Space): 70–100 sq ft per employee – Best for startups and collaborative teams. Standard Office Layout (Balanced Space & Comfort): 100–150 sq ft per employee – Includes desks, shared meeting rooms, and breakout areas. Spacious Office Layout (Premium Work Environment): 150–250 sq ft per employee – Suitable for executive offices, creative agencies, or high-end corporate spaces. Private Offices & Executive Suites: 200–400+ sq ft per employee – Ideal for law firms, financial institutions, or businesses needing privacy. Additional Considerations: Meeting Rooms: 50–100 sq ft per person Breakout Areas: 10–30 sq ft per employee Reception Areas: 100–300 sq ft, depending on visitor flow
What types of offices space available in London?
How to find the perfect office to rent in or near to London?
The London market offers a wide range of options to suit various budgets and business needs. With rent prices starting as low as £1 psf and averaging around £40 psf, businesses can find competitive pricing that aligns with their financial goals. The highest rent in the market reaches up to £628 psf, reflecting premium office spaces in prime locations. When it comes to size, flexibility is key. Office range from a minimum of 1 sq ft to a maximum of 384,381 sq ft. On average, let office spaces are sized at 13,658 sq ft, providing ample room for teams of all sizes.
How to choose an office space in London?
Affordable office space: Between £10–£20 psf, catering to startups and established businesses alike. Premium Offices: For those seeking top-tier office environments, explore options up to £628 psf. Tailored Options: The average office size, 13,658 sq ft, ensures a balance of space and functionality.
What should I consider before renting an office?
Consider the location, transport links, size, layout, internet connectivity, amenities, lease length, and budget. Also assess proximity to clients, staff, and other businesses.
What types of office space are available near to London?
You’ll find a range of office types including serviced offices, open-plan spaces, private suites, coworking hubs, and entire floors or buildings for larger organisations.
What’s the difference between serviced and traditional office space?
Serviced offices are ready-to-use spaces with flexible terms, often including furniture, utilities, internet, and reception services. Traditional leases offer more control and customisation, usually on longer terms.
What lease terms are typical for office rentals?
Traditional office leases typically range from 3 to 10 years, sometimes with break clauses or rent reviews. Flexible or serviced offices can be rented on monthly rolling terms.
Are business rates included in the rent?
Business rates are usually separate unless the space is serviced or on an all-inclusive agreement. Always clarify what’s included in the rental price before signing a lease.
What is a service charge and do I have to pay it?
A service charge covers shared facilities such as lifts, security, cleaning, and maintenance of common areas. This is typically paid on top of the rent and should be detailed in the lease.
Can I make alterations to the office space?
You may be able to make alterations, but landlord approval is usually required for structural or significant cosmetic changes. Always check the lease for terms on alterations and reinstatement obligations.
Do I need to arrange my own internet and utilities?
In traditional office spaces, tenants usually arrange their own broadband, electricity, and other utilities. In serviced offices, these are typically included in the price.
How do I find the right office space in London?
Start your search on LoopNet, shortlist options and get in touch with local commercial agents. Consider viewing multiple options to compare space, costs, and terms.

Find More Office Spaces to Rent in and Near to London on LoopNet

London is the UK’s largest and most dynamic office market, offering a vast range of options for businesses of all sizes. From premium Grade A offices in the City and Soho to creative coworking spaces in Shoreditch and flexible offices in Southbank, the capital caters to every sector and budget. Tenants can choose between serviced offices, managed spaces, and conventional leaseholds, with many buildings offering modern amenities, short-term flexibility, and excellent connectivity across London’s transport network.

Key London office submarkets include the City of London, Canary Wharf, Kings Cross, Farringdon, Clerkenwell, Victoria, and Hammersmith. Emerging hubs like Stratford, Croydon, and White City are also growing in popularity, particularly among tech, media, and life sciences firms. With strong infrastructure, a global business presence, and a broad mix of property types, London continues to be the leading choice for companies seeking office space to rent in a world-class business environment.

LoopNet - the worlds No. 1 commercial property marketplace.