Log In/Sign up
Enter your email to login or create a free account
This feature is unavailable at the moment.
We apologize, but the feature you are trying to access is currently unavailable. We are aware of this issue and our team is working hard to resolve the matter.
Please check back in a few minutes. We apologize for the inconvenience.
- LoopNet Team
This Industrial Property is no longer advertised on LoopNet.co.uk.
Castle Rd
Ventnor PO38 3EE
Castle Works · Industrial Property For Sale

Investment Highlights
- Close o Sandown & Shanklin
- Quiet, tucked away area
- Countryside location
Property Facts
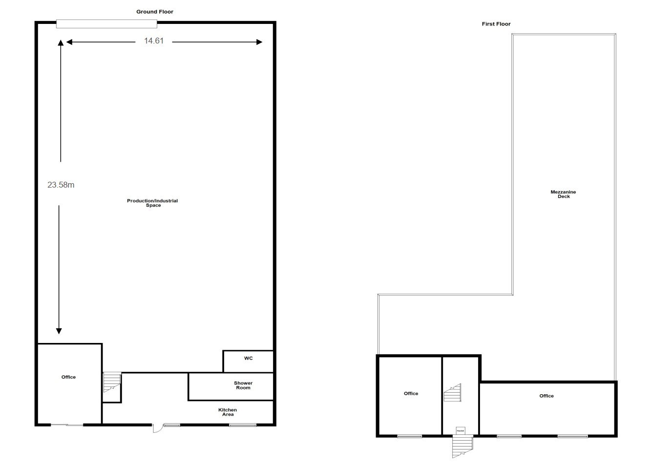
| Property Type | Industrial | Year Built | 1870 |
| Total Plot Size | 0.45 ac | Tenancy | Single |
| Net Internal Area (NIA) | 6,726 sq ft | Parking Allocation | 0.45/1,000 sq ft |
| No. Floors | 2 | No. Drive In / Grade-Level Doors | 1 |
| Property Type | Industrial |
| Total Plot Size | 0.45 ac |
| Net Internal Area (NIA) | 6,726 sq ft |
| No. Floors | 2 |
| Year Built | 1870 |
| Tenancy | Single |
| Parking Allocation | 0.45/1,000 sq ft |
| No. Drive In / Grade-Level Doors | 1 |
Amenities
- Demised WC facilities
Utilities
- Water - City
- Sewer - City
- Heating
Listing ID: 27628083
Date on Market: 30/01/2023
Last Updated:
Address: Castle Rd, Ventnor PO38 3EE
The Industrial Property at Castle Rd, Ventnor, PO38 3EE is no longer being advertised on LoopNet.co.uk. Contact the agent for information on availability.
INDUSTRIAL PROPERTIES IN NEARBY NEIGHBOURHOODS
NEARBY LISTINGS
1 of 1
Videos
Matterport 3D Exterior
Matterport 3D Tour
Photos
Street View
Street
Map

Link copied
Your LoopNet account has been created!
Thank you for your feedback.
Please Share Your Feedback
We welcome any feedback on how we can improve LoopNet to better serve your needs.X
{{ getErrorText(feedbackForm.starRating, "rating") }}
255 character limit ({{ remainingChars() }} charactercharacters remainingover)
{{ getErrorText(feedbackForm.msg, "rating") }}
{{ getErrorText(feedbackForm.fname, "first name") }}
{{ getErrorText(feedbackForm.lname, "last name") }}
{{ getErrorText(feedbackForm.phone, "phone number") }}
{{ getErrorText(feedbackForm.phonex, "phone extension") }}
{{ getErrorText(feedbackForm.email, "email address") }}
You can provide feedback any time using the Help button at the top of the page.