Your email has been sent.
Gateway Mews 3,628 sq ft Office Unit Offered at £850,000 in London N11 2UT



Investment Highlights
- Secure gated park
- Immediate occupation ready
- Excellent transport links
Executive Summary
Secure gated business park just off Bounds Green Road near the A406 North Circular. The location offers excellent connectivity, with easy access westwards to the A40/M1 and eastwards to the A10 and M11. Public transport links are strong, with Southgate main line station only 0.5 miles away and Bounds Green Piccadilly Line station 0.6 miles away, providing convenient routes into Central London and beyond.
1 Unit Available
Unit 11
| Unit Size | 3,628 sq ft | Sale Type | Owner Occupier |
| Price | £850,000 | Tenure | Freehold |
| Price Per sq ft | £234.29 | No. Parking Spaces | 6 |
| Unit Use | Office |
| Unit Size | 3,628 sq ft |
| Price | £850,000 |
| Price Per sq ft | £234.29 |
| Unit Use | Office |
| Sale Type | Owner Occupier |
| Tenure | Freehold |
| No. Parking Spaces | 6 |
Description
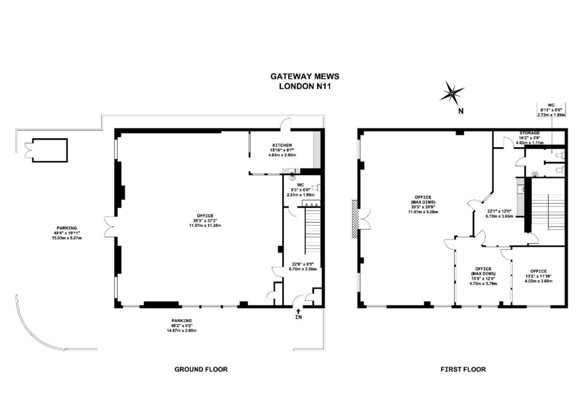
The property comprises a freehold office of approximately 3,628 sq ft (337 sq m) within a secure gated business park. It features air conditioning throughout, a fitted alarm system, and off-street parking for around six cars. The space is ready for immediate occupation and offers a professional environment with modern amenities.
Sale Notes
Located just off Bounds Green Road near the A406 North Circular, the property benefits from excellent transport links, including proximity to Southgate main line station (0.5 miles) and Bounds Green Piccadilly Line station (0.6 miles), providing easy access to Central London. The current service charge is approximately £3,000 per annum, and the business rates have a rateable value of £48,000 until April 2026. Offers are invited for the freehold interest at a guide price of £850,000, subject to contract, with viewings strictly by appointment through sole agents Jeremy Leaf & Co.
Floor Plan
Interior Phot
Interior Photo
Property Facts
| Total Property Size | 13,729 sq ft | Typical Floor Size | 6,864 sq ft |
| Property Type | Office (Unit) | Year Built | 2006 |
| Costar Property Class | B | Parking Allocation | 0.43/1,000 sq ft |
| Floors | 2 |
| Total Property Size | 13,729 sq ft |
| Property Type | Office (Unit) |
| Costar Property Class | B |
| Floors | 2 |
| Typical Floor Size | 6,864 sq ft |
| Year Built | 2006 |
| Parking Allocation | 0.43/1,000 sq ft |
Amenities
- Controlled Access
- Courtyard
- Security System
- Accent Lighting
- Air Conditioning
Presented by
Gateway Mews
Hmm, there seems to have been an error sending your message. Please try again.
Thanks! Your message was sent.

