Your email has been sent.
Hutton Bank 1,300 - 2,600 sq ft of Industrial Space Available in Ripon HG4 5DT



Highlights
- Brand-new development of high-quality hybrid workshop and office units
- Dedicated workshop/storage area with roller shutter access
- Located at Hutton Bank, Ripon
All Available Spaces(2)
Display Rent as
- Space
- Size
- Term
- Rate
- Space Use
- Fit-Out
- Available
The 2 spaces in this building must be leased together, for a total size of 1,300 sq ft (Contiguous Area):
The property is available to lease on new terms to be negotiated.
- Use Class: B2
- Secure Storage
- Yard
- Available on a new lease
- Natural light provision with versatile layout
- Space is in Excellent Condition
- Roller Shutters
- Smoke Detector
- Office space on upper floor
- Includes 650 sq ft of dedicated office space
The 2 spaces in this building must be leased together, for a total size of 1,300 sq ft (Contiguous Area):
The property is available to lease on new terms to be negotiated.
- Use Class: B2
- Secure Storage
- Yard
- Available on a new lease
- Natural light provision with versatile layout
- Space is in Excellent Condition
- Roller Shutters
- Smoke Detector
- Office space on upper floor
- Includes 650 sq ft of dedicated office space
| Space | Size | Term | Rate | Space Use | Fit-Out | Available |
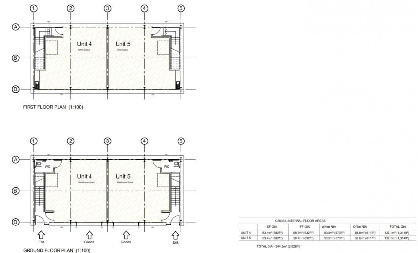
| Ground - 4, 1st Floor - 4 | 1,300 sq ft | Negotiable | £15.38 /sq ft pa £1.28 /sq ft pcm £19,994 pa £1,666 pcm | Industrial | Full Fit-Out | 24/05/2026 |
| Ground - 5, 1st Floor - 5 | 1,300 sq ft | Negotiable | £15.38 /sq ft pa £1.28 /sq ft pcm £19,994 pa £1,666 pcm | Industrial | Full Fit-Out | 24/05/2026 |
Ground - 4, 1st Floor - 4
The 2 spaces in this building must be leased together, for a total size of 1,300 sq ft (Contiguous Area):
| Size |
|
Ground - 4 - 650 sq ft
1st Floor - 4 - 650 sq ft
|
| Term |
| Negotiable |
| Rate |
| £15.38 /sq ft pa £1.28 /sq ft pcm £19,994 pa £1,666 pcm |
| Space Use |
| Industrial |
| Fit-Out |
| Full Fit-Out |
| Available |
| 24/05/2026 |
Ground - 5, 1st Floor - 5
The 2 spaces in this building must be leased together, for a total size of 1,300 sq ft (Contiguous Area):
| Size |
|
Ground - 5 - 650 sq ft
1st Floor - 5 - 650 sq ft
|
| Term |
| Negotiable |
| Rate |
| £15.38 /sq ft pa £1.28 /sq ft pcm £19,994 pa £1,666 pcm |
| Space Use |
| Industrial |
| Fit-Out |
| Full Fit-Out |
| Available |
| 24/05/2026 |
Ground - 4, 1st Floor - 4
| Size |
Ground - 4 - 650 sq ft
1st Floor - 4 - 650 sq ft
|
| Term | Negotiable |
| Rate | £15.38 /sq ft pa |
| Space Use | Industrial |
| Fit-Out | Full Fit-Out |
| Available | 24/05/2026 |
The property is available to lease on new terms to be negotiated.
- Use Class: B2
- Space is in Excellent Condition
- Secure Storage
- Roller Shutters
- Yard
- Smoke Detector
- Available on a new lease
- Office space on upper floor
- Natural light provision with versatile layout
- Includes 650 sq ft of dedicated office space
Ground - 5, 1st Floor - 5
| Size |
Ground - 5 - 650 sq ft
1st Floor - 5 - 650 sq ft
|
| Term | Negotiable |
| Rate | £15.38 /sq ft pa |
| Space Use | Industrial |
| Fit-Out | Full Fit-Out |
| Available | 24/05/2026 |
The property is available to lease on new terms to be negotiated.
- Use Class: B2
- Space is in Excellent Condition
- Secure Storage
- Roller Shutters
- Yard
- Smoke Detector
- Available on a new lease
- Office space on upper floor
- Natural light provision with versatile layout
- Includes 650 sq ft of dedicated office space
Property Overview
A brand-new development of high-quality hybrid workshop and office units ideally located at Hutton Bank, Ripon, available from Spring 2026. This modern scheme comprises five purpose-built two-storey units, each thoughtfully designed to provide flexible space for a variety of business uses. Each unit features: Ground Floor: Dedicated workshop/storage area with roller shutter access. First Floor: Well-appointed office accommodation with natural light and versatile layout
Warehouse Facility Facts
Presented by
Hutton Bank
Hmm, there seems to have been an error sending your message. Please try again.
Thanks! Your message was sent.
