Your email has been sent.
The Turing Building Westfield Ave 8,657 - 259,974 sq ft of 5-Star Office Space Available in London E20 1HZ

Highlights
- 350,000 sq ft in the heart of Stratford.
- WELL Gold and BREEAM Outstanding.
- Roof Terraces.
- Bio-diverse Rooftop.
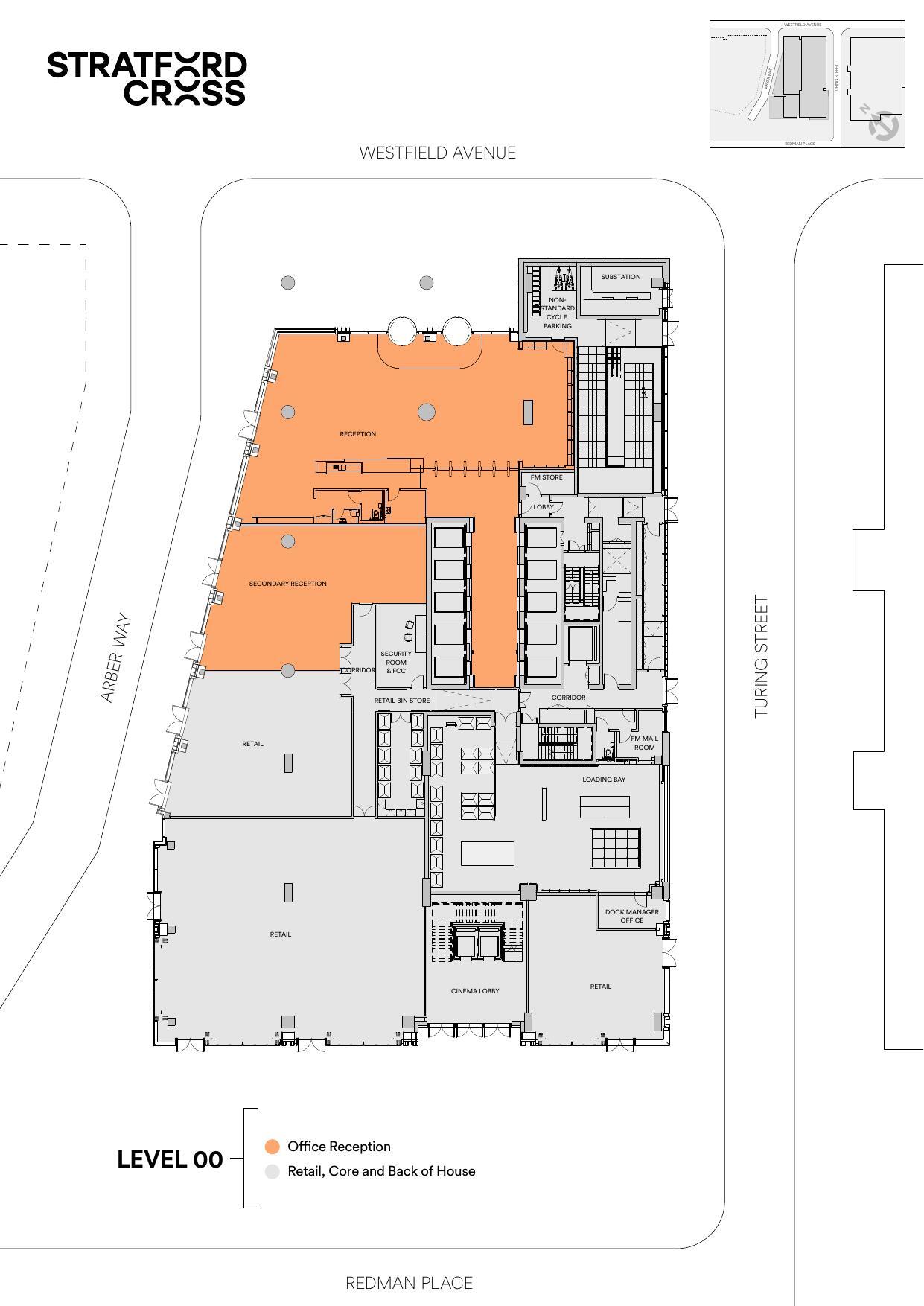
- Everyman Cinema on ground and lower ground. Available to book as presentation space.
- Educational Use consent in place for 200,000 sq ft.
- EPC A.
- 100% Fresh Air.
- Flexible Floorplates.
- Active Lobby with Events Space.
- Ability to offer self-contained entrance.
- Level 21 providing amenity space and terrace benefitting all occupiers.
All Available Spaces(16)
Display Rent as
- Space
- Size
- Term
- Rate
- Space Use
- Fit-Out
- Available
Occupy, brand-new Grade A workspaces wrapped up within 350,000 square feet of imaginatively designed architecture at The Turing Building in Stratford Cross. Designed with flexibility and sustainability at its core, the building offers efficient, open-plan floor plates and best-in-class sustainability for forward-thinking occupiers. Please contact the agents for more information.
- Use Class: E
- Mostly Open Floor Plan Layout
- Can be combined with additional space(s) for up to 251,317 sq ft of adjacent space
- Energy Performance Rating - A
- Best-In-Class Sustainability
- Integrated Everyman Cinema
- End-Of-Trip Facilities
- Partially Fit-Out as Standard Office
- Space is in Excellent Condition
- Natural Light
- Exclusive WC facilities
- Exclusive business lounge and event space on L21
- Ground Floor Cafe
Occupy, brand-new Grade A workspaces wrapped up within 350,000 square feet of imaginatively designed architecture at The Turing Building in Stratford Cross. Designed with flexibility and sustainability at its core, the building offers efficient, open-plan floor plates and best-in-class sustainability for forward-thinking occupiers. Please contact the agents for more information.
- Use Class: E
- Mostly Open Floor Plan Layout
- Can be combined with additional space(s) for up to 251,317 sq ft of adjacent space
- Natural Light
- Exclusive WC facilities
- Exclusive business lounge and event space on L21
- Ground Floor Cafe
- Partially Fit-Out as Standard Office
- Space is in Excellent Condition
- Central Air Conditioning
- Energy Performance Rating - A
- Best-In-Class Sustainability
- Integrated Everyman Cinema
- End-Of-Trip Facilities
Occupy, brand-new Grade A workspaces wrapped up within 350,000 square feet of imaginatively designed architecture at The Turing Building in Stratford Cross. Designed with flexibility and sustainability at its core, the building offers efficient, open-plan floor plates and best-in-class sustainability for forward-thinking occupiers. Please contact the agents for more information.
- Use Class: E
- Mostly Open Floor Plan Layout
- Can be combined with additional space(s) for up to 251,317 sq ft of adjacent space
- Natural Light
- Best-In-Class Sustainability
- Integrated Everyman Cinema
- End-Of-Trip Facilities
- Partially Fit-Out as Standard Office
- Space is in Excellent Condition
- Kitchen
- Exclusive WC facilities
- Exclusive business lounge and event space on L21
- Ground Floor Cafe
Occupy, brand-new Grade A workspaces wrapped up within 350,000 square feet of imaginatively designed architecture at The Turing Building in Stratford Cross. Designed with flexibility and sustainability at its core, the building offers efficient, open-plan floor plates and best-in-class sustainability for forward-thinking occupiers. Please contact the agents for more information.
- Use Class: E
- Mostly Open Floor Plan Layout
- Can be combined with additional space(s) for up to 251,317 sq ft of adjacent space
- Natural Light
- Exclusive WC facilities
- Exclusive business lounge and event space on L21
- Ground Floor Cafe
- Partially Fit-Out as Standard Office
- Space is in Excellent Condition
- Central Air Conditioning
- Energy Performance Rating - A
- Best-In-Class Sustainability
- Integrated Everyman Cinema
- End-Of-Trip Facilities
Occupy, brand-new Grade A workspaces wrapped up within 350,000 square feet of imaginatively designed architecture at The Turing Building in Stratford Cross. Designed with flexibility and sustainability at its core, the building offers efficient, open-plan floor plates and best-in-class sustainability for forward-thinking occupiers. Please contact the agents for more information.
- Use Class: E
- Mostly Open Floor Plan Layout
- Can be combined with additional space(s) for up to 251,317 sq ft of adjacent space
- Natural Light
- Exclusive WC facilities
- Exclusive business lounge and event space on L21
- Ground Floor Cafe
- Partially Fit-Out as Standard Office
- Space is in Excellent Condition
- Central Air Conditioning
- Energy Performance Rating - A
- Best-In-Class Sustainability
- Integrated Everyman Cinema
- End-Of-Trip Facilities
Occupy, brand-new Grade A workspaces wrapped up within 350,000 square feet of imaginatively designed architecture at The Turing Building in Stratford Cross. Designed with flexibility and sustainability at its core, the building offers efficient, open-plan floor plates and best-in-class sustainability for forward-thinking occupiers. Please contact the agents for more information.
- Use Class: E
- Mostly Open Floor Plan Layout
- Can be combined with additional space(s) for up to 251,317 sq ft of adjacent space
- Natural Light
- Best-In-Class Sustainability
- Integrated Everyman Cinema
- End-Of-Trip Facilities
- Partially Fit-Out as Standard Office
- Space is in Excellent Condition
- Kitchen
- Exclusive WC facilities
- Exclusive business lounge and event space on L21
- Ground Floor Cafe
Occupy, brand-new Grade A workspaces wrapped up within 350,000 square feet of imaginatively designed architecture at The Turing Building in Stratford Cross. Designed with flexibility and sustainability at its core, the building offers efficient, open-plan floor plates and best-in-class sustainability for forward-thinking occupiers. Please contact the agents for more information.
- Use Class: E
- Mostly Open Floor Plan Layout
- Can be combined with additional space(s) for up to 251,317 sq ft of adjacent space
- Natural Light
- Exclusive WC facilities
- Exclusive business lounge and event space on L21
- Ground Floor Cafe
- Partially Fit-Out as Standard Office
- Space is in Excellent Condition
- Central Air Conditioning
- Energy Performance Rating - A
- Best-In-Class Sustainability
- Integrated Everyman Cinema
- End-Of-Trip Facilities
Occupy, brand-new Grade A workspaces wrapped up within 350,000 square feet of imaginatively designed architecture at The Turing Building in Stratford Cross. Designed with flexibility and sustainability at its core, the building offers efficient, open-plan floor plates and best-in-class sustainability for forward-thinking occupiers. Please contact the agents for more information.
- Use Class: E
- Mostly Open Floor Plan Layout
- Central Air Conditioning
- Energy Performance Rating - A
- Best-In-Class Sustainability
- Integrated Everyman Cinema
- End-Of-Trip Facilities
- Partially Fit-Out as Standard Office
- Space is in Excellent Condition
- Natural Light
- Exclusive WC facilities
- Exclusive business lounge and event space on L21
- Ground Floor Cafe
Occupy, brand-new Grade A workspaces wrapped up within 350,000 square feet of imaginatively designed architecture at The Turing Building in Stratford Cross. Designed with flexibility and sustainability at its core, the building offers efficient, open-plan floor plates and best-in-class sustainability for forward-thinking occupiers. Please contact the agents for more information.
- Use Class: E
- Mostly Open Floor Plan Layout
- Can be combined with additional space(s) for up to 251,317 sq ft of adjacent space
- Natural Light
- Exclusive WC facilities
- Exclusive business lounge and event space on L21
- Ground Floor Cafe
- Partially Fit-Out as Standard Office
- Space is in Excellent Condition
- Central Air Conditioning
- Energy Performance Rating - A
- Best-In-Class Sustainability
- Integrated Everyman Cinema
- End-Of-Trip Facilities
Occupy, brand-new Grade A workspaces wrapped up within 350,000 square feet of imaginatively designed architecture at The Turing Building in Stratford Cross. Designed with flexibility and sustainability at its core, the building offers efficient, open-plan floor plates and best-in-class sustainability for forward-thinking occupiers. Please contact the agents for more information.
- Use Class: E
- Mostly Open Floor Plan Layout
- Can be combined with additional space(s) for up to 251,317 sq ft of adjacent space
- Kitchen
- Best-In-Class Sustainability
- Integrated Everyman Cinema
- End-Of-Trip Facilities
- Partially Fit-Out as Standard Office
- Space is in Excellent Condition
- Central Air and Heating
- Exclusive WC facilities
- Exclusive business lounge and event space on L21
- Ground Floor Cafe
Occupy, brand-new Grade A workspaces wrapped up within 350,000 square feet of imaginatively designed architecture at The Turing Building in Stratford Cross. Designed with flexibility and sustainability at its core, the building offers efficient, open-plan floor plates and best-in-class sustainability for forward-thinking occupiers. Please contact the agents for more information.
- Use Class: E
- Mostly Open Floor Plan Layout
- Can be combined with additional space(s) for up to 251,317 sq ft of adjacent space
- Natural Light
- Best-In-Class Sustainability
- Integrated Everyman Cinema
- End-Of-Trip Facilities
- Partially Fit-Out as Standard Office
- Space is in Excellent Condition
- Kitchen
- Exclusive WC facilities
- Exclusive business lounge and event space on L21
- Ground Floor Cafe
Occupy, brand-new Grade A workspaces wrapped up within 350,000 square feet of imaginatively designed architecture at The Turing Building in Stratford Cross. Designed with flexibility and sustainability at its core, the building offers efficient, open-plan floor plates and best-in-class sustainability for forward-thinking occupiers. Please contact the agents for more information.
- Use Class: E
- Mostly Open Floor Plan Layout
- Can be combined with additional space(s) for up to 251,317 sq ft of adjacent space
- Natural Light
- Exclusive WC facilities
- Exclusive business lounge and event space on L21
- Ground Floor Cafe
- Partially Fit-Out as Standard Office
- Space is in Excellent Condition
- Central Air Conditioning
- Energy Performance Rating - A
- Best-In-Class Sustainability
- Integrated Everyman Cinema
- End-Of-Trip Facilities
Occupy, brand-new Grade A workspaces wrapped up within 350,000 square feet of imaginatively designed architecture at The Turing Building in Stratford Cross. Designed with flexibility and sustainability at its core, the building offers efficient, open-plan floor plates and best-in-class sustainability for forward-thinking occupiers. Please contact the agents for more information.
- Use Class: E
- Mostly Open Floor Plan Layout
- Can be combined with additional space(s) for up to 251,317 sq ft of adjacent space
- Natural Light
- Exclusive WC facilities
- Exclusive business lounge and event space on L21
- Ground Floor Cafe
- Partially Fit-Out as Standard Office
- Space is in Excellent Condition
- Central Air Conditioning
- Energy Performance Rating - A
- Best-In-Class Sustainability
- Integrated Everyman Cinema
- End-Of-Trip Facilities
2,207-square-foot terrace available.
- Use Class: E
- Mostly Open Floor Plan Layout
- Can be combined with additional space(s) for up to 251,317 sq ft of adjacent space
- Balcony
- Energy Performance Rating - A
- Best-In-Class Sustainability
- Integrated Everyman Cinema
- End-Of-Trip Facilities
- Partially Fit-Out as Standard Office
- Space is in Excellent Condition
- Central Air Conditioning
- Natural Light
- Exclusive WC facilities
- Exclusive business lounge and event space on L21
- Ground Floor Cafe
Occupy, brand-new Grade A workspaces wrapped up within 350,000 square feet of imaginatively designed architecture at The Turing Building in Stratford Cross. Designed with flexibility and sustainability at its core, the building offers efficient, open-plan floor plates and best-in-class sustainability for forward-thinking occupiers. Please contact the agents for more information.
- Use Class: E
- Mostly Open Floor Plan Layout
- Can be combined with additional space(s) for up to 251,317 sq ft of adjacent space
- Natural Light
- Exclusive WC facilities
- Exclusive business lounge and event space on L21
- Ground Floor Cafe
- Partially Fit-Out as Standard Office
- Space is in Excellent Condition
- Central Air Conditioning
- Energy Performance Rating - A
- Best-In-Class Sustainability
- Integrated Everyman Cinema
- End-Of-Trip Facilities
Occupy, brand-new Grade A workspaces wrapped up within 350,000 square feet of imaginatively designed architecture at The Turing Building in Stratford Cross. Designed with flexibility and sustainability at its core, the building offers efficient, open-plan floor plates and best-in-class sustainability for forward-thinking occupiers. Please contact the agents for more information.
- Use Class: E
- Mostly Open Floor Plan Layout
- Can be combined with additional space(s) for up to 251,317 sq ft of adjacent space
- Natural Light
- Exclusive WC facilities
- Exclusive business lounge and event space on L21
- Ground Floor Cafe
- Partially Fit-Out as Standard Office
- Space is in Excellent Condition
- Central Air Conditioning
- Energy Performance Rating - A
- Best-In-Class Sustainability
- Integrated Everyman Cinema
- End-Of-Trip Facilities
| Space | Size | Term | Rate | Space Use | Fit-Out | Available |
| 7th Floor | 17,524 sq ft | Negotiable | £49.50 /sq ft pa £4.13 /sq ft pcm £867,438 pa £72,287 pcm | Office | Partial Fit-Out | Now |
| 8th Floor | 17,534 sq ft | Negotiable | £49.50 /sq ft pa £4.13 /sq ft pcm £867,933 pa £72,328 pcm | Office | Partial Fit-Out | Now |
| 9th Floor | 17,534 sq ft | Negotiable | £49.50 /sq ft pa £4.13 /sq ft pcm £867,933 pa £72,328 pcm | Office | Partial Fit-Out | Now |
| 10th Floor | 17,534 sq ft | Negotiable | £49.50 /sq ft pa £4.13 /sq ft pcm £867,933 pa £72,328 pcm | Office | Partial Fit-Out | Now |
| 11th Floor | 17,557 sq ft | Negotiable | £49.50 /sq ft pa £4.13 /sq ft pcm £869,072 pa £72,423 pcm | Office | Partial Fit-Out | Now |
| 12th Floor | 17,558 sq ft | Negotiable | £49.50 /sq ft pa £4.13 /sq ft pcm £869,121 pa £72,427 pcm | Office | Partial Fit-Out | Under offer |
| 13th Floor, Ste North | 10,000 sq ft | Negotiable | £49.50 /sq ft pa £4.13 /sq ft pcm £495,000 pa £41,250 pcm | Office | Partial Fit-Out | Under offer |
| 13th Floor, Ste South | 8,657 sq ft | Negotiable | £49.50 /sq ft pa £4.13 /sq ft pcm £428,522 pa £35,710 pcm | Office | Partial Fit-Out | Now |
| 14th Floor | 18,288 sq ft | Negotiable | £49.50 /sq ft pa £4.13 /sq ft pcm £905,256 pa £75,438 pcm | Office | Partial Fit-Out | Under offer |
| 15th Floor | 18,675 sq ft | Negotiable | £49.50 /sq ft pa £4.13 /sq ft pcm £924,413 pa £77,034 pcm | Office | Partial Fit-Out | Now |
| 16th Floor | 18,385 sq ft | Negotiable | £49.50 /sq ft pa £4.13 /sq ft pcm £910,058 pa £75,838 pcm | Office | Partial Fit-Out | Now |
| 17th Floor | 18,675 sq ft | Negotiable | £49.50 /sq ft pa £4.13 /sq ft pcm £924,413 pa £77,034 pcm | Office | Partial Fit-Out | Now |
| 18th Floor | 18,686 sq ft | Negotiable | £49.50 /sq ft pa £4.13 /sq ft pcm £924,957 pa £77,080 pcm | Office | Partial Fit-Out | Now |
| 19th Floor | 16,394 sq ft | Negotiable | £49.50 /sq ft pa £4.13 /sq ft pcm £811,503 pa £67,625 pcm | Office | Partial Fit-Out | Now |
| 20th Floor | 16,393 sq ft | Negotiable | £49.50 /sq ft pa £4.13 /sq ft pcm £811,454 pa £67,621 pcm | Office | Partial Fit-Out | Now |
| 21st Floor, Ste Amenity Floor | 10,580 sq ft | Negotiable | Upon Application Upon Application Upon Application Upon Application | Office | Partial Fit-Out | Now |
7th Floor
| Size |
| 17,524 sq ft |
| Term |
| Negotiable |
| Rate |
| £49.50 /sq ft pa £4.13 /sq ft pcm £867,438 pa £72,287 pcm |
| Space Use |
| Office |
| Fit-Out |
| Partial Fit-Out |
| Available |
| Now |
8th Floor
| Size |
| 17,534 sq ft |
| Term |
| Negotiable |
| Rate |
| £49.50 /sq ft pa £4.13 /sq ft pcm £867,933 pa £72,328 pcm |
| Space Use |
| Office |
| Fit-Out |
| Partial Fit-Out |
| Available |
| Now |
9th Floor
| Size |
| 17,534 sq ft |
| Term |
| Negotiable |
| Rate |
| £49.50 /sq ft pa £4.13 /sq ft pcm £867,933 pa £72,328 pcm |
| Space Use |
| Office |
| Fit-Out |
| Partial Fit-Out |
| Available |
| Now |
10th Floor
| Size |
| 17,534 sq ft |
| Term |
| Negotiable |
| Rate |
| £49.50 /sq ft pa £4.13 /sq ft pcm £867,933 pa £72,328 pcm |
| Space Use |
| Office |
| Fit-Out |
| Partial Fit-Out |
| Available |
| Now |
11th Floor
| Size |
| 17,557 sq ft |
| Term |
| Negotiable |
| Rate |
| £49.50 /sq ft pa £4.13 /sq ft pcm £869,072 pa £72,423 pcm |
| Space Use |
| Office |
| Fit-Out |
| Partial Fit-Out |
| Available |
| Now |
12th Floor
| Size |
| 17,558 sq ft |
| Term |
| Negotiable |
| Rate |
| £49.50 /sq ft pa £4.13 /sq ft pcm £869,121 pa £72,427 pcm |
| Space Use |
| Office |
| Fit-Out |
| Partial Fit-Out |
| Available |
| Under offer |
13th Floor, Ste North
| Size |
| 10,000 sq ft |
| Term |
| Negotiable |
| Rate |
| £49.50 /sq ft pa £4.13 /sq ft pcm £495,000 pa £41,250 pcm |
| Space Use |
| Office |
| Fit-Out |
| Partial Fit-Out |
| Available |
| Under offer |
13th Floor, Ste South
| Size |
| 8,657 sq ft |
| Term |
| Negotiable |
| Rate |
| £49.50 /sq ft pa £4.13 /sq ft pcm £428,522 pa £35,710 pcm |
| Space Use |
| Office |
| Fit-Out |
| Partial Fit-Out |
| Available |
| Now |
14th Floor
| Size |
| 18,288 sq ft |
| Term |
| Negotiable |
| Rate |
| £49.50 /sq ft pa £4.13 /sq ft pcm £905,256 pa £75,438 pcm |
| Space Use |
| Office |
| Fit-Out |
| Partial Fit-Out |
| Available |
| Under offer |
15th Floor
| Size |
| 18,675 sq ft |
| Term |
| Negotiable |
| Rate |
| £49.50 /sq ft pa £4.13 /sq ft pcm £924,413 pa £77,034 pcm |
| Space Use |
| Office |
| Fit-Out |
| Partial Fit-Out |
| Available |
| Now |
16th Floor
| Size |
| 18,385 sq ft |
| Term |
| Negotiable |
| Rate |
| £49.50 /sq ft pa £4.13 /sq ft pcm £910,058 pa £75,838 pcm |
| Space Use |
| Office |
| Fit-Out |
| Partial Fit-Out |
| Available |
| Now |
17th Floor
| Size |
| 18,675 sq ft |
| Term |
| Negotiable |
| Rate |
| £49.50 /sq ft pa £4.13 /sq ft pcm £924,413 pa £77,034 pcm |
| Space Use |
| Office |
| Fit-Out |
| Partial Fit-Out |
| Available |
| Now |
18th Floor
| Size |
| 18,686 sq ft |
| Term |
| Negotiable |
| Rate |
| £49.50 /sq ft pa £4.13 /sq ft pcm £924,957 pa £77,080 pcm |
| Space Use |
| Office |
| Fit-Out |
| Partial Fit-Out |
| Available |
| Now |
19th Floor
| Size |
| 16,394 sq ft |
| Term |
| Negotiable |
| Rate |
| £49.50 /sq ft pa £4.13 /sq ft pcm £811,503 pa £67,625 pcm |
| Space Use |
| Office |
| Fit-Out |
| Partial Fit-Out |
| Available |
| Now |
20th Floor
| Size |
| 16,393 sq ft |
| Term |
| Negotiable |
| Rate |
| £49.50 /sq ft pa £4.13 /sq ft pcm £811,454 pa £67,621 pcm |
| Space Use |
| Office |
| Fit-Out |
| Partial Fit-Out |
| Available |
| Now |
21st Floor, Ste Amenity Floor
| Size |
| 10,580 sq ft |
| Term |
| Negotiable |
| Rate |
| Upon Application Upon Application Upon Application Upon Application |
| Space Use |
| Office |
| Fit-Out |
| Partial Fit-Out |
| Available |
| Now |
7th Floor
| Size | 17,524 sq ft |
| Term | Negotiable |
| Rate | £49.50 /sq ft pa |
| Space Use | Office |
| Fit-Out | Partial Fit-Out |
| Available | Now |
Occupy, brand-new Grade A workspaces wrapped up within 350,000 square feet of imaginatively designed architecture at The Turing Building in Stratford Cross. Designed with flexibility and sustainability at its core, the building offers efficient, open-plan floor plates and best-in-class sustainability for forward-thinking occupiers. Please contact the agents for more information.
- Use Class: E
- Partially Fit-Out as Standard Office
- Mostly Open Floor Plan Layout
- Space is in Excellent Condition
- Can be combined with additional space(s) for up to 251,317 sq ft of adjacent space
- Natural Light
- Energy Performance Rating - A
- Exclusive WC facilities
- Best-In-Class Sustainability
- Exclusive business lounge and event space on L21
- Integrated Everyman Cinema
- Ground Floor Cafe
- End-Of-Trip Facilities
8th Floor
| Size | 17,534 sq ft |
| Term | Negotiable |
| Rate | £49.50 /sq ft pa |
| Space Use | Office |
| Fit-Out | Partial Fit-Out |
| Available | Now |
Occupy, brand-new Grade A workspaces wrapped up within 350,000 square feet of imaginatively designed architecture at The Turing Building in Stratford Cross. Designed with flexibility and sustainability at its core, the building offers efficient, open-plan floor plates and best-in-class sustainability for forward-thinking occupiers. Please contact the agents for more information.
- Use Class: E
- Partially Fit-Out as Standard Office
- Mostly Open Floor Plan Layout
- Space is in Excellent Condition
- Can be combined with additional space(s) for up to 251,317 sq ft of adjacent space
- Central Air Conditioning
- Natural Light
- Energy Performance Rating - A
- Exclusive WC facilities
- Best-In-Class Sustainability
- Exclusive business lounge and event space on L21
- Integrated Everyman Cinema
- Ground Floor Cafe
- End-Of-Trip Facilities
9th Floor
| Size | 17,534 sq ft |
| Term | Negotiable |
| Rate | £49.50 /sq ft pa |
| Space Use | Office |
| Fit-Out | Partial Fit-Out |
| Available | Now |
Occupy, brand-new Grade A workspaces wrapped up within 350,000 square feet of imaginatively designed architecture at The Turing Building in Stratford Cross. Designed with flexibility and sustainability at its core, the building offers efficient, open-plan floor plates and best-in-class sustainability for forward-thinking occupiers. Please contact the agents for more information.
- Use Class: E
- Partially Fit-Out as Standard Office
- Mostly Open Floor Plan Layout
- Space is in Excellent Condition
- Can be combined with additional space(s) for up to 251,317 sq ft of adjacent space
- Kitchen
- Natural Light
- Exclusive WC facilities
- Best-In-Class Sustainability
- Exclusive business lounge and event space on L21
- Integrated Everyman Cinema
- Ground Floor Cafe
- End-Of-Trip Facilities
10th Floor
| Size | 17,534 sq ft |
| Term | Negotiable |
| Rate | £49.50 /sq ft pa |
| Space Use | Office |
| Fit-Out | Partial Fit-Out |
| Available | Now |
Occupy, brand-new Grade A workspaces wrapped up within 350,000 square feet of imaginatively designed architecture at The Turing Building in Stratford Cross. Designed with flexibility and sustainability at its core, the building offers efficient, open-plan floor plates and best-in-class sustainability for forward-thinking occupiers. Please contact the agents for more information.
- Use Class: E
- Partially Fit-Out as Standard Office
- Mostly Open Floor Plan Layout
- Space is in Excellent Condition
- Can be combined with additional space(s) for up to 251,317 sq ft of adjacent space
- Central Air Conditioning
- Natural Light
- Energy Performance Rating - A
- Exclusive WC facilities
- Best-In-Class Sustainability
- Exclusive business lounge and event space on L21
- Integrated Everyman Cinema
- Ground Floor Cafe
- End-Of-Trip Facilities
11th Floor
| Size | 17,557 sq ft |
| Term | Negotiable |
| Rate | £49.50 /sq ft pa |
| Space Use | Office |
| Fit-Out | Partial Fit-Out |
| Available | Now |
Occupy, brand-new Grade A workspaces wrapped up within 350,000 square feet of imaginatively designed architecture at The Turing Building in Stratford Cross. Designed with flexibility and sustainability at its core, the building offers efficient, open-plan floor plates and best-in-class sustainability for forward-thinking occupiers. Please contact the agents for more information.
- Use Class: E
- Partially Fit-Out as Standard Office
- Mostly Open Floor Plan Layout
- Space is in Excellent Condition
- Can be combined with additional space(s) for up to 251,317 sq ft of adjacent space
- Central Air Conditioning
- Natural Light
- Energy Performance Rating - A
- Exclusive WC facilities
- Best-In-Class Sustainability
- Exclusive business lounge and event space on L21
- Integrated Everyman Cinema
- Ground Floor Cafe
- End-Of-Trip Facilities
12th Floor
| Size | 17,558 sq ft |
| Term | Negotiable |
| Rate | £49.50 /sq ft pa |
| Space Use | Office |
| Fit-Out | Partial Fit-Out |
| Available | Under offer |
Occupy, brand-new Grade A workspaces wrapped up within 350,000 square feet of imaginatively designed architecture at The Turing Building in Stratford Cross. Designed with flexibility and sustainability at its core, the building offers efficient, open-plan floor plates and best-in-class sustainability for forward-thinking occupiers. Please contact the agents for more information.
- Use Class: E
- Partially Fit-Out as Standard Office
- Mostly Open Floor Plan Layout
- Space is in Excellent Condition
- Can be combined with additional space(s) for up to 251,317 sq ft of adjacent space
- Kitchen
- Natural Light
- Exclusive WC facilities
- Best-In-Class Sustainability
- Exclusive business lounge and event space on L21
- Integrated Everyman Cinema
- Ground Floor Cafe
- End-Of-Trip Facilities
13th Floor, Ste North
| Size | 10,000 sq ft |
| Term | Negotiable |
| Rate | £49.50 /sq ft pa |
| Space Use | Office |
| Fit-Out | Partial Fit-Out |
| Available | Under offer |
Occupy, brand-new Grade A workspaces wrapped up within 350,000 square feet of imaginatively designed architecture at The Turing Building in Stratford Cross. Designed with flexibility and sustainability at its core, the building offers efficient, open-plan floor plates and best-in-class sustainability for forward-thinking occupiers. Please contact the agents for more information.
- Use Class: E
- Partially Fit-Out as Standard Office
- Mostly Open Floor Plan Layout
- Space is in Excellent Condition
- Can be combined with additional space(s) for up to 251,317 sq ft of adjacent space
- Central Air Conditioning
- Natural Light
- Energy Performance Rating - A
- Exclusive WC facilities
- Best-In-Class Sustainability
- Exclusive business lounge and event space on L21
- Integrated Everyman Cinema
- Ground Floor Cafe
- End-Of-Trip Facilities
13th Floor, Ste South
| Size | 8,657 sq ft |
| Term | Negotiable |
| Rate | £49.50 /sq ft pa |
| Space Use | Office |
| Fit-Out | Partial Fit-Out |
| Available | Now |
Occupy, brand-new Grade A workspaces wrapped up within 350,000 square feet of imaginatively designed architecture at The Turing Building in Stratford Cross. Designed with flexibility and sustainability at its core, the building offers efficient, open-plan floor plates and best-in-class sustainability for forward-thinking occupiers. Please contact the agents for more information.
- Use Class: E
- Partially Fit-Out as Standard Office
- Mostly Open Floor Plan Layout
- Space is in Excellent Condition
- Central Air Conditioning
- Natural Light
- Energy Performance Rating - A
- Exclusive WC facilities
- Best-In-Class Sustainability
- Exclusive business lounge and event space on L21
- Integrated Everyman Cinema
- Ground Floor Cafe
- End-Of-Trip Facilities
14th Floor
| Size | 18,288 sq ft |
| Term | Negotiable |
| Rate | £49.50 /sq ft pa |
| Space Use | Office |
| Fit-Out | Partial Fit-Out |
| Available | Under offer |
Occupy, brand-new Grade A workspaces wrapped up within 350,000 square feet of imaginatively designed architecture at The Turing Building in Stratford Cross. Designed with flexibility and sustainability at its core, the building offers efficient, open-plan floor plates and best-in-class sustainability for forward-thinking occupiers. Please contact the agents for more information.
- Use Class: E
- Partially Fit-Out as Standard Office
- Mostly Open Floor Plan Layout
- Space is in Excellent Condition
- Can be combined with additional space(s) for up to 251,317 sq ft of adjacent space
- Central Air Conditioning
- Natural Light
- Energy Performance Rating - A
- Exclusive WC facilities
- Best-In-Class Sustainability
- Exclusive business lounge and event space on L21
- Integrated Everyman Cinema
- Ground Floor Cafe
- End-Of-Trip Facilities
15th Floor
| Size | 18,675 sq ft |
| Term | Negotiable |
| Rate | £49.50 /sq ft pa |
| Space Use | Office |
| Fit-Out | Partial Fit-Out |
| Available | Now |
Occupy, brand-new Grade A workspaces wrapped up within 350,000 square feet of imaginatively designed architecture at The Turing Building in Stratford Cross. Designed with flexibility and sustainability at its core, the building offers efficient, open-plan floor plates and best-in-class sustainability for forward-thinking occupiers. Please contact the agents for more information.
- Use Class: E
- Partially Fit-Out as Standard Office
- Mostly Open Floor Plan Layout
- Space is in Excellent Condition
- Can be combined with additional space(s) for up to 251,317 sq ft of adjacent space
- Central Air and Heating
- Kitchen
- Exclusive WC facilities
- Best-In-Class Sustainability
- Exclusive business lounge and event space on L21
- Integrated Everyman Cinema
- Ground Floor Cafe
- End-Of-Trip Facilities
16th Floor
| Size | 18,385 sq ft |
| Term | Negotiable |
| Rate | £49.50 /sq ft pa |
| Space Use | Office |
| Fit-Out | Partial Fit-Out |
| Available | Now |
Occupy, brand-new Grade A workspaces wrapped up within 350,000 square feet of imaginatively designed architecture at The Turing Building in Stratford Cross. Designed with flexibility and sustainability at its core, the building offers efficient, open-plan floor plates and best-in-class sustainability for forward-thinking occupiers. Please contact the agents for more information.
- Use Class: E
- Partially Fit-Out as Standard Office
- Mostly Open Floor Plan Layout
- Space is in Excellent Condition
- Can be combined with additional space(s) for up to 251,317 sq ft of adjacent space
- Kitchen
- Natural Light
- Exclusive WC facilities
- Best-In-Class Sustainability
- Exclusive business lounge and event space on L21
- Integrated Everyman Cinema
- Ground Floor Cafe
- End-Of-Trip Facilities
17th Floor
| Size | 18,675 sq ft |
| Term | Negotiable |
| Rate | £49.50 /sq ft pa |
| Space Use | Office |
| Fit-Out | Partial Fit-Out |
| Available | Now |
Occupy, brand-new Grade A workspaces wrapped up within 350,000 square feet of imaginatively designed architecture at The Turing Building in Stratford Cross. Designed with flexibility and sustainability at its core, the building offers efficient, open-plan floor plates and best-in-class sustainability for forward-thinking occupiers. Please contact the agents for more information.
- Use Class: E
- Partially Fit-Out as Standard Office
- Mostly Open Floor Plan Layout
- Space is in Excellent Condition
- Can be combined with additional space(s) for up to 251,317 sq ft of adjacent space
- Central Air Conditioning
- Natural Light
- Energy Performance Rating - A
- Exclusive WC facilities
- Best-In-Class Sustainability
- Exclusive business lounge and event space on L21
- Integrated Everyman Cinema
- Ground Floor Cafe
- End-Of-Trip Facilities
18th Floor
| Size | 18,686 sq ft |
| Term | Negotiable |
| Rate | £49.50 /sq ft pa |
| Space Use | Office |
| Fit-Out | Partial Fit-Out |
| Available | Now |
Occupy, brand-new Grade A workspaces wrapped up within 350,000 square feet of imaginatively designed architecture at The Turing Building in Stratford Cross. Designed with flexibility and sustainability at its core, the building offers efficient, open-plan floor plates and best-in-class sustainability for forward-thinking occupiers. Please contact the agents for more information.
- Use Class: E
- Partially Fit-Out as Standard Office
- Mostly Open Floor Plan Layout
- Space is in Excellent Condition
- Can be combined with additional space(s) for up to 251,317 sq ft of adjacent space
- Central Air Conditioning
- Natural Light
- Energy Performance Rating - A
- Exclusive WC facilities
- Best-In-Class Sustainability
- Exclusive business lounge and event space on L21
- Integrated Everyman Cinema
- Ground Floor Cafe
- End-Of-Trip Facilities
19th Floor
| Size | 16,394 sq ft |
| Term | Negotiable |
| Rate | £49.50 /sq ft pa |
| Space Use | Office |
| Fit-Out | Partial Fit-Out |
| Available | Now |
2,207-square-foot terrace available.
- Use Class: E
- Partially Fit-Out as Standard Office
- Mostly Open Floor Plan Layout
- Space is in Excellent Condition
- Can be combined with additional space(s) for up to 251,317 sq ft of adjacent space
- Central Air Conditioning
- Balcony
- Natural Light
- Energy Performance Rating - A
- Exclusive WC facilities
- Best-In-Class Sustainability
- Exclusive business lounge and event space on L21
- Integrated Everyman Cinema
- Ground Floor Cafe
- End-Of-Trip Facilities
20th Floor
| Size | 16,393 sq ft |
| Term | Negotiable |
| Rate | £49.50 /sq ft pa |
| Space Use | Office |
| Fit-Out | Partial Fit-Out |
| Available | Now |
Occupy, brand-new Grade A workspaces wrapped up within 350,000 square feet of imaginatively designed architecture at The Turing Building in Stratford Cross. Designed with flexibility and sustainability at its core, the building offers efficient, open-plan floor plates and best-in-class sustainability for forward-thinking occupiers. Please contact the agents for more information.
- Use Class: E
- Partially Fit-Out as Standard Office
- Mostly Open Floor Plan Layout
- Space is in Excellent Condition
- Can be combined with additional space(s) for up to 251,317 sq ft of adjacent space
- Central Air Conditioning
- Natural Light
- Energy Performance Rating - A
- Exclusive WC facilities
- Best-In-Class Sustainability
- Exclusive business lounge and event space on L21
- Integrated Everyman Cinema
- Ground Floor Cafe
- End-Of-Trip Facilities
21st Floor, Ste Amenity Floor
| Size | 10,580 sq ft |
| Term | Negotiable |
| Rate | Upon Application |
| Space Use | Office |
| Fit-Out | Partial Fit-Out |
| Available | Now |
Occupy, brand-new Grade A workspaces wrapped up within 350,000 square feet of imaginatively designed architecture at The Turing Building in Stratford Cross. Designed with flexibility and sustainability at its core, the building offers efficient, open-plan floor plates and best-in-class sustainability for forward-thinking occupiers. Please contact the agents for more information.
- Use Class: E
- Partially Fit-Out as Standard Office
- Mostly Open Floor Plan Layout
- Space is in Excellent Condition
- Can be combined with additional space(s) for up to 251,317 sq ft of adjacent space
- Central Air Conditioning
- Natural Light
- Energy Performance Rating - A
- Exclusive WC facilities
- Best-In-Class Sustainability
- Exclusive business lounge and event space on L21
- Integrated Everyman Cinema
- Ground Floor Cafe
- End-Of-Trip Facilities
Matterport 3D Tours
Property Overview
Welcome to The Turing Building, a next-generation commercial office tower forming a key part of the Stratford Cross district in East London's cultural heart. Offering over 350,000 square feet of sustainable, Grade A workspace, The Turing Building's design has redefined the workplace, offering a unique environment to excite, enable, and inspire individuals to realise their full potential. Located in London's powerhouse of culture, Stratford's dynamic, well-connected neighbourhood blends research and education with culture and innovation, offering an inspiring destination where businesses thrive. Nestled between 560 acres of the Queen Elizabeth Olympic Park, the creative institutions of the East Bank, the London Stadium, and a vast array of shopping, dining, and entertainment experiences, including nearby Westfield Stratford City, this ever-evolving destination at the heart of Stratford has it all. Surrounded by amazing neighbourhoods and just a five-minute stroll from some of the capital's most incredible experiences, you'll never be short of things to do in Stratford. Designed for flexibility, The Turing Building enjoys efficient, clear floor plates, green work and study spaces, flexible event space, and a biodiverse roof terrace with expansive views of the capital, offering occupiers a world-class experience to match their ambitions. Realise the building's splendour upon entering, where individuals are greeted by a stunning, active lobby with an integrated three-screen cinema and retail-led ground floor bursting with life, and embedding this building as an asset for the wider community. The building's ambition was to create an exemplary commercial building designed to attract tenants, inspire collaboration, and support new ways of working whilst reducing carbon footprints and making positive impacts. Through exceptional workspace design, The Turing Building has enhanced the well-being and happiness of occupiers with careful consideration given to better air quality, outdoor workspaces, and flexible layouts to foster collaboration whilst combatting carbon emissions and occupation costs. Save on energy with 100% low-energy LED lighting to create the optimal working environment and achieve your Net Zero Carbon goals by becoming part of the largest decentralised energy scheme in the UK, with every building within Stratford Cross powered by biomass boilers at Stratford District's Heating and Cooling network's energy centres. Buoyed by the legacy of the Olympics, Stratford's connectivity has seen significant improvements over the last decade. Find ample cycle paths and end-of-trip facilities encouraging green travel, numerous nearby bus stops servicing the local area, and unrivalled public transport connections at Stratford Station, offering lightning-fast connections to Liverpool Street, Tottenham Court Road, and Paddington in less than 20 minutes. With the Jubilee Line, the Elizabeth Line, the DLR, and National Rail services all accessible, travel is a breeze, with Stratford establishing itself as one of the best-connected destinations in London and the ideal neighbourhood to place your business.
- Atrium
- Bus Route
- Kitchen
- EPC - A
- Roof Terrace
- Central Heating
- Common Parts WC Facilities
- Lift Access
- Natural Light
- Open-Plan
- Air Conditioning
Property Facts
Marketing Brochure
Nearby Amenities
Restaurants |
|||
|---|---|---|---|
| Figo | - | - | 2 min walk |
| Itsu | - | - | 2 min walk |
| Nespresso Boutique | - | - | 5 min walk |
Retail |
||
|---|---|---|
| Beaverbrooks | Jewellery/Watches | 5 min walk |
| Levi's | Unisex Apparel | 5 min walk |
| Accessorize | Ladies' Apparel | 5 min walk |
| Vans | Unisex Apparel | 5 min walk |
| INGLOT | Health & Beauty Aids | 5 min walk |
Hotels |
|
|---|---|
| Hyatt House |
125 rooms
4 min walk
|
| Autograph Collection |
145 rooms
6 min walk
|
| Hyatt Regency |
225 rooms
6 min walk
|
| Urban Rest |
36 rooms
7 min walk
|
| Aparthotel Adagio |
136 rooms
7 min walk
|
About Eastern Fringe
London’s eastern fringe is an emerging office destination, offering occupiers speedy access to central London at far lower occupational costs than can be found in more established areas to the west. It encompasses a host of vibrant areas like Whitechapel, Hackney and Wapping, with Stratford’s Queen Elizabeth Olympic Park and international railway station as its centrepiece.
The area has risen in status as an office location over the past decade, with the 2012 Olympic Games acting as a catalyst for regeneration and development. Its already-strong transport links improved yet further in 2022 with the arrival of Elizabeth line services. Such improvements have helped put the area on the radar of an increasing pool of office occupiers. Key movers to the area in recent years include Cancer Research, the British Council and the Financial Conduct Authority, while a wave of smaller technology and media companies have gravitated to the likes of Here East in Stratford and trendy hotspots like Whitechapel. Firms can expect to pay around 30-40% less, on average, for space here than they would in central London.
Strong transport connections and a vibrant social and retail scene have helped fuel outsized population growth in recent years, with a host of residential developers targeting the area due to its growing popularity with young professionals. Its population is projected to continue rising faster than the London average in the coming years, too, increasing the area’s vibrancy still further, as well as its pool of local workers.
Leasing Teams
Leasing Teams
Angus Goswell,
Partner/Department Head,Chairman London Offices
Mike Voller, Partner, London Office Leasing
Mike is re-joining Knight Frank after six years at leading boutique London property consultancy Spring4, where he specialised in advising corporate occupiers on a broad range of transactions, including lease acquisitions, re-gears, purchases and lettings.
Richard Howard,
Executive Director
About the Owner
Other Properties in the CPP INVESTMENTS Portfolio
About the Architect
Presented by
Company Not Provided
The Turing Building | Westfield Ave
Hmm, there seems to have been an error sending your message. Please try again.
Thanks! Your message was sent.




