Your email has been sent.
Highlights
- Excellent road links via the motorway network
- Located on the corner of Breadmarket Street and Bore Street
- Former bank building set in the centre of Lichfield
Space Availability (1)
Display Rent as
- Space
- Size
- Term
- Rate
- Type
| Space | Size | Term | Rate | Type | ||
| Ground | 2,629 sq ft | Negotiable | £30.43 /sq ft pa £2.54 /sq ft pcm £80,000 pa £6,667 pcm | Fully Repairing & Insuring |
Ground
£80,000 per annum exclusive. The premises areavailable by way of a new full repairing lease on terms to be agreed.
- Use Class: E
- Fully Fit-Out as a Bank
- Space is in Excellent Condition
- Secure Storage
- Energy Performance Rating - E
- Potential for alternative uses
- Large ground and first floor accommodation
- 8 car parking spaces
Service Types
The rent amount and service type that the tenant (lessee) will be responsible to pay to the landlord (lessor) throughout the lease term is negotiated prior to both parties signing a lease agreement. The service type will vary depending upon the services provided. Contact the listing agent for a full understanding of any associated costs or additional expenses for each service type.
1. Fully Repairing & Insuring: All obligations for repairing and insuring the property (or their share of the property) both internally and externally.
2. Internal Repairing Only: The tenant is responsible for internal repairs only. The landlord is responsible for structural and external repairs.
3. Internal Repairing & Insuring: The tenant is responsible for internal repairs and insurance for internal parts of the property only. The landlord is responsible for structural and external repairs.
4. Negotiable or TBD: This is used when the leasing contact does not provide the service type.
Property Facts
| Total Space Available | 2,629 sq ft | Net Internal Area (NIA) | 2,629 sq ft |
| Property Type | Retail | Year Built | 1880 |
| Property Subtype | Bank | Parking Allocation | 3.04/1,000 sq ft |
| Total Space Available | 2,629 sq ft |
| Property Type | Retail |
| Property Subtype | Bank |
| Net Internal Area (NIA) | 2,629 sq ft |
| Year Built | 1880 |
| Parking Allocation | 3.04/1,000 sq ft |
About the Property
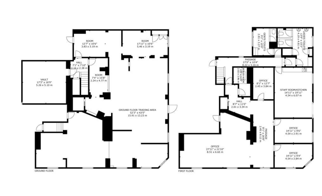
Prominent 3-storey former bank building set in the centre of Lichfield. The demised area is set across two floors, with the ground comprising of a banking hall with ancillary offices to the rear. The first floor consists of newly refurbished offices and staffing area. 8 car parking spaces are also provided to the rear of the property.
- Bus Route
Nearby Major Retailers
Presented by
1 Breadmarket St
Hmm, there seems to have been an error sending your message. Please try again.
Thanks! Your message was sent.





