Log In/Sign up
Your email has been sent.
Investment Highlights
- Freehold Landmark Building.
- Suitable for alternative uses, subject to necessary consents.
- Income producing with asset management potential.
Executive Summary
The premises are located in a prominent position on Paradise Road, in the heart of Richmond Town Centre. Richmond has excellent transport communications. It is located on the A316 with access to the M3 and in turn the M25; the A4, M4 and A3 are a short distance away. Heathrow Airport is 9 miles to the West of Richmond. Richmond Station is only a short walk away from the premises offering train services to London Waterloo and provides access to the District Line as well as London overground services to Stratford via Willesden Junction and Highbury & Islington.
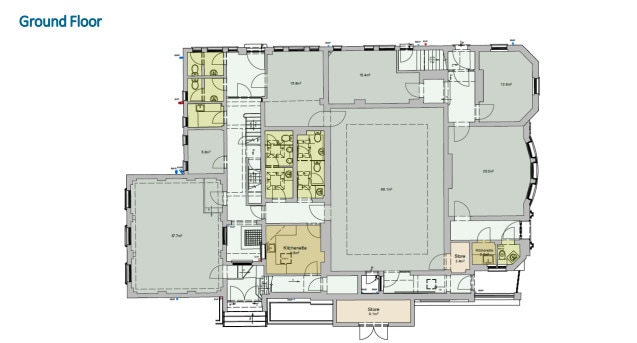
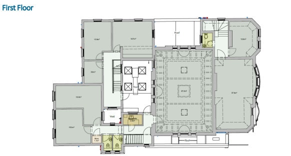
The property is a two-storey, detached, red-brick building located prominently in the heart of Richmond and comprises the former purpose-built Petty Sessions / Magistrates’ Courthouse, designed by architect W.J. Ancell, opened in 1896. Arranged over ground and first floors the building also benefits from basement storage. The specification is a mix of cellular and open plan spaces, WC’s and kitchen areas, with central heating and supplementary comfort cooling. The property is not listed however is a Building of Townscape Merit and located within a conservation area.
The property is a two-storey, detached, red-brick building located prominently in the heart of Richmond and comprises the former purpose-built Petty Sessions / Magistrates’ Courthouse, designed by architect W.J. Ancell, opened in 1896. Arranged over ground and first floors the building also benefits from basement storage. The specification is a mix of cellular and open plan spaces, WC’s and kitchen areas, with central heating and supplementary comfort cooling. The property is not listed however is a Building of Townscape Merit and located within a conservation area.
Property Facts
Sale Type
Investment
Property Type
Office
Tenure
Freehold/Long Leasehold
Property Size
5,713 sq ft
Costar Property Class
B
Year Built
1800
Occupancy Rate
100%
Tenancy
Multiple
Number of Floors
2
Typical Floor Size
3,662 sq ft
Floor To Floor Height
10 ft
Amenities
- Bus Route
- Security System
- Accent Lighting
- Air Conditioning
Major Tenants
- Tenant
- Industry
- sq ft Occupied
- Rent/sq ft
- Lease End
- Hays Accountancy & Finance
- Administrative and Support Services
- 2,044 sq ft
- -
- -
- Richmond Parish Lands Charity
- Service type
- 800 sq ft
- -
- -
- Twcog Llp
- -
- 1,130 sq ft
- -
- -
- Vineyard Community
- -
- 578 sq ft
- -
- -
- Yoga Bar
- -
- 540 sq ft
- -
- -
| Tenant | Industry | sq ft Occupied | Rent/sq ft | Lease End | ||
| Hays Accountancy & Finance | Administrative and Support Services | 2,044 sq ft | - | - | ||
| Richmond Parish Lands Charity | Service type | 800 sq ft | - | - | ||
| Twcog Llp | - | 1,130 sq ft | - | - | ||
| Vineyard Community | - | 578 sq ft | - | - | ||
| Yoga Bar | - | 540 sq ft | - | - |
1 1
1 of 4
Videos
Matterport 3D Exterior
Matterport 3D Tour
Photos
Street View
Street
Map
1 of 1
Presented by
Vestry House | 21-23 Paradise Rd
Already a member? Log In
Hmm, there seems to have been an error sending your message. Please try again.
Thanks! Your message was sent.



