Your email has been sent.
Highlights
- Great road links
- Proximity to the river
- Close to local amenities
All Available Spaces(3)
Display Rent as
- Space
- Size
- Term
- Rate
- Space Use
- Fit-Out
- Available
The premises occupy a prominent position on Richmond Hill comprising ground, first and second floor office accommodation in excellent decorative condition within an attractive period building. The building benefits from excellent natural light, two separate entrances, multiple meeting rooms and on-site parking.
- Use Class: E
- Mostly Open Floor Plan Layout
- Central Heating System
- Common Parts WC Facilities
- Excellent natural light
- Multiple meeting rooms
- Partially Fit-Out as Standard Office
- Can be combined with additional space(s) for up to 1,948 sq ft of adjacent space
- Energy Performance Rating - C
- Smoke Detector
- Two separate entrances
The premises occupy a prominent position on Richmond Hill comprising ground, first and second floor office accommodation in excellent decorative condition within an attractive period building. The building benefits from excellent natural light, two separate entrances, multiple meeting rooms and on-site parking.
- Use Class: E
- Mostly Open Floor Plan Layout
- Central Heating System
- Common Parts WC Facilities
- Excellent natural light
- Multiple meeting rooms
- Partially Fit-Out as Standard Office
- Can be combined with additional space(s) for up to 1,948 sq ft of adjacent space
- Energy Performance Rating - C
- Smoke Detector
- Two separate entrances
The premises occupy a prominent position on Richmond Hill comprising ground, first and second floor office accommodation in excellent decorative condition within an attractive period building. The building benefits from excellent natural light, two separate entrances, multiple meeting rooms and on-site parking.
- Use Class: E
- Mostly Open Floor Plan Layout
- Central Heating System
- Common Parts WC Facilities
- Excellent natural light
- Multiple meeting rooms
- Partially Fit-Out as Standard Office
- Can be combined with additional space(s) for up to 1,948 sq ft of adjacent space
- Energy Performance Rating - C
- Smoke Detector
- Two separate entrances
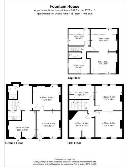
| Space | Size | Term | Rate | Space Use | Fit-Out | Available |
| Ground | 697 sq ft | Negotiable | Upon Application Upon Application Upon Application Upon Application | Office | Partial Fit-Out | Now |
| 1st Floor | 661 sq ft | Negotiable | Upon Application Upon Application Upon Application Upon Application | Office | Partial Fit-Out | Now |
| 2nd Floor | 590 sq ft | Negotiable | Upon Application Upon Application Upon Application Upon Application | Office | Partial Fit-Out | Now |
Ground
| Size |
| 697 sq ft |
| Term |
| Negotiable |
| Rate |
| Upon Application Upon Application Upon Application Upon Application |
| Space Use |
| Office |
| Fit-Out |
| Partial Fit-Out |
| Available |
| Now |
1st Floor
| Size |
| 661 sq ft |
| Term |
| Negotiable |
| Rate |
| Upon Application Upon Application Upon Application Upon Application |
| Space Use |
| Office |
| Fit-Out |
| Partial Fit-Out |
| Available |
| Now |
2nd Floor
| Size |
| 590 sq ft |
| Term |
| Negotiable |
| Rate |
| Upon Application Upon Application Upon Application Upon Application |
| Space Use |
| Office |
| Fit-Out |
| Partial Fit-Out |
| Available |
| Now |
Ground
| Size | 697 sq ft |
| Term | Negotiable |
| Rate | Upon Application |
| Space Use | Office |
| Fit-Out | Partial Fit-Out |
| Available | Now |
The premises occupy a prominent position on Richmond Hill comprising ground, first and second floor office accommodation in excellent decorative condition within an attractive period building. The building benefits from excellent natural light, two separate entrances, multiple meeting rooms and on-site parking.
- Use Class: E
- Partially Fit-Out as Standard Office
- Mostly Open Floor Plan Layout
- Can be combined with additional space(s) for up to 1,948 sq ft of adjacent space
- Central Heating System
- Energy Performance Rating - C
- Common Parts WC Facilities
- Smoke Detector
- Excellent natural light
- Two separate entrances
- Multiple meeting rooms
1st Floor
| Size | 661 sq ft |
| Term | Negotiable |
| Rate | Upon Application |
| Space Use | Office |
| Fit-Out | Partial Fit-Out |
| Available | Now |
The premises occupy a prominent position on Richmond Hill comprising ground, first and second floor office accommodation in excellent decorative condition within an attractive period building. The building benefits from excellent natural light, two separate entrances, multiple meeting rooms and on-site parking.
- Use Class: E
- Partially Fit-Out as Standard Office
- Mostly Open Floor Plan Layout
- Can be combined with additional space(s) for up to 1,948 sq ft of adjacent space
- Central Heating System
- Energy Performance Rating - C
- Common Parts WC Facilities
- Smoke Detector
- Excellent natural light
- Two separate entrances
- Multiple meeting rooms
2nd Floor
| Size | 590 sq ft |
| Term | Negotiable |
| Rate | Upon Application |
| Space Use | Office |
| Fit-Out | Partial Fit-Out |
| Available | Now |
The premises occupy a prominent position on Richmond Hill comprising ground, first and second floor office accommodation in excellent decorative condition within an attractive period building. The building benefits from excellent natural light, two separate entrances, multiple meeting rooms and on-site parking.
- Use Class: E
- Partially Fit-Out as Standard Office
- Mostly Open Floor Plan Layout
- Can be combined with additional space(s) for up to 1,948 sq ft of adjacent space
- Central Heating System
- Energy Performance Rating - C
- Common Parts WC Facilities
- Smoke Detector
- Excellent natural light
- Two separate entrances
- Multiple meeting rooms
Property Overview
Richmond is an affluent town located approximately 8 miles South West of Central London and just off the A316 which provides excellent access to the surrounding road networks, linking with the M3 in the West and to the M4 in the North. The property is conveniently situated where Hill Rise joins Richmond Hill and is within easy reach of the river and a selection of local amenities such as Adesso, Nandos, and the Ivy Cafe.
- Courtyard
- Security System
- EPC - C
- Storage Space
- Demised WC facilities
- High Ceilings
- Natural Light
- Smoke Detector
Property Facts
Select Tenants
- Floor
- Tenant Name
- Industry
- Multiple
- Paragon Sports Management Ltd
- Professional, Scientific, and Technical Services
- Multiple
- Petrol Valves (GB) Ltd
- Manufacturing
Presented by
Fountain House | 28-32 Holbrooke Pl
Hmm, there seems to have been an error sending your message. Please try again.
Thanks! Your message was sent.






