Your email has been sent.
282-284 Brigstock Rd 1,910 sq ft Office Unit Offered at £575,000 in Thornton Heath CR7 7JE

Investment Highlights
- Prominently positioned near corner of Brigstock Rd and Colliers Water Ln
- Good transport links
- Situated close to Thornton Heath centre
Executive Summary
Thornton Heath is a vibrant and well-connected area of South London, providing a wide range of amenities, retail and restaurant options. The premises are situated just off the A23 Thornton Road, with Thornton Heath centre a short walk away. Croydon town centre is just 2 KM to the South. Thornton Heath benefits from excellent road and rail connections with the M23 and Junction 7 of the M25 accessible via the A23. There is a Mainline Railway Station (Zone 4) providing regular services to East Croydon and Central London.
1 Unit Available
Unit Ground
| Unit Size | 1,910 sq ft | Unit Use | Office |
| Price | £575,000 | Sale Type | Owner Occupier |
| Price Per sq ft | £301.05 | Tenure | Freehold |
| Unit Size | 1,910 sq ft |
| Price | £575,000 |
| Price Per sq ft | £301.05 |
| Unit Use | Office |
| Sale Type | Owner Occupier |
| Tenure | Freehold |
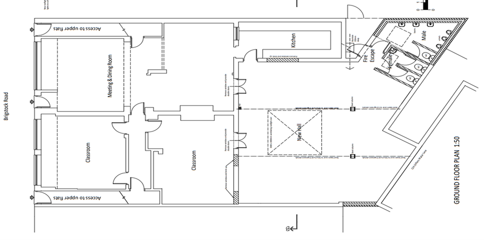
Description
A virtual freehold Class F community premises suitable for a variety of uses
(subject to planning).
The premises comprise a large ground floor double fronted unit with good
prominence to Brigstock Road. The accommodation is currently arranged to
provide a number of spacious rooms / halls together with a large kitchen and
ancillary storage. There is an enclosed courtyard to the rear of the property.
The property has recently been refurbished and benefits from gas fired
central heating, LED lighting, laminate wood effect flooring and UPVC double
glazed windows. The newly refurbished male and female toilets are accessed
from the rear courtyard.
Sale Notes
The property is held on a 999 year lease from 1st November 2017 at a
peppercorn ground rent.
Interior
Interior
Interior
Interior
Interior
Floor Plan
Interior
Outdoor
Property Facts
| Total Property Size | 1,910 sq ft | Typical Floor Size | 499 sq ft |
| Property Type | Office (Unit) | Year Built | 1860 |
| Costar Property Class | B | Tenancy | Single |
| Floors | 1 | Total Plot Size | 0.07 ac |
| Total Property Size | 1,910 sq ft |
| Property Type | Office (Unit) |
| Costar Property Class | B |
| Floors | 1 |
| Typical Floor Size | 499 sq ft |
| Year Built | 1860 |
| Tenancy | Single |
| Total Plot Size | 0.07 ac |
Amenities
- Courtyard
- Signage
Presented by
282-284 Brigstock Rd
Hmm, there seems to have been an error sending your message. Please try again.
Thanks! Your message was sent.

