Your email has been sent.
32 Market Sq 1,183 sq ft of Retail Space Available in Northampton NN1 2DF


Highlights
- Located on the Market Square
- Shared courtyard garden at the rear
- Grade II* listed building
All Available Space(1)
Display Rent as
- Space
- Size
- Term
- Rate
- Space Use
- Fit-Out
- Available
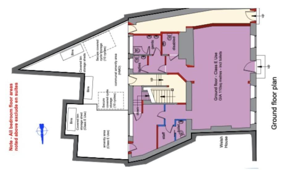
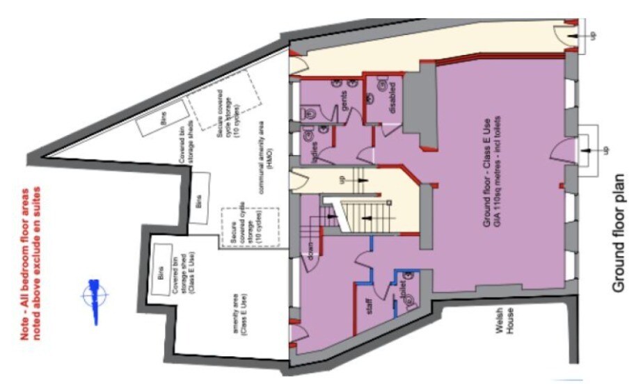
The property comprises a newly refurbished ground-floor retail unit of approximately 110 sq m (1,183 sq ft), offered under Class E use with pending consent for additional uses including A1–A4 and B1/D1/D2. The unit features a bright, modern interior with new kitchen, heating, lighting, WC, and floor coverings, making it ready for immediate occupation. It is available on a new lease at £24,000 per annum, with utilities and service charge payable by the tenant. The property has an EPC rating of D.
- Use Class: E
- Basement
- Basement storage
- Located in-line with other retail
- Shell fit out
- Open plan space
| Space | Size | Term | Rate | Space Use | Fit-Out | Available |
| Ground | 1,183 sq ft | Negotiable | £20.29 /sq ft pa £1.69 /sq ft pcm £24,000 pa £2,000 pcm | Retail | Shell And Core | Now |
Ground
| Size |
| 1,183 sq ft |
| Term |
| Negotiable |
| Rate |
| £20.29 /sq ft pa £1.69 /sq ft pcm £24,000 pa £2,000 pcm |
| Space Use |
| Retail |
| Fit-Out |
| Shell And Core |
| Available |
| Now |
Ground
| Size | 1,183 sq ft |
| Term | Negotiable |
| Rate | £24,000 pa |
| Space Use | Retail |
| Fit-Out | Shell And Core |
| Available | Now |
The property comprises a newly refurbished ground-floor retail unit of approximately 110 sq m (1,183 sq ft), offered under Class E use with pending consent for additional uses including A1–A4 and B1/D1/D2. The unit features a bright, modern interior with new kitchen, heating, lighting, WC, and floor coverings, making it ready for immediate occupation. It is available on a new lease at £24,000 per annum, with utilities and service charge payable by the tenant. The property has an EPC rating of D.
- Use Class: E
- Located in-line with other retail
- Basement
- Shell fit out
- Basement storage
- Open plan space
Property Facts
Property Overview
The property is located on Market Square, which dates back to 1235 and is undergoing major regeneration. Northampton's main shopping centre - The Grosvenor Shopping Centre immediately abuts the property. A new food and beverage hub will soon open nearby at the Market Walk shopping centre. STACK, home to independent street food outlets, bars, a dedicated space for interactive games and a main stage for live music and entertainment, will operate it.
- Storage Space
Nearby Major Retailers
Presented by
32 Market Sq
Hmm, there seems to have been an error sending your message. Please try again.
Thanks! Your message was sent.


